EasyManua.ls Logo

Omron CP1L - Main Specifications

Omron CP1L
763 pages
Print Icon
To Next Page IconTo Next Page
To Next Page IconTo Next Page
To Previous Page IconTo Previous Page
To Previous Page IconTo Previous Page
Loading...
462
Temperature Sensor Units Section 7-5
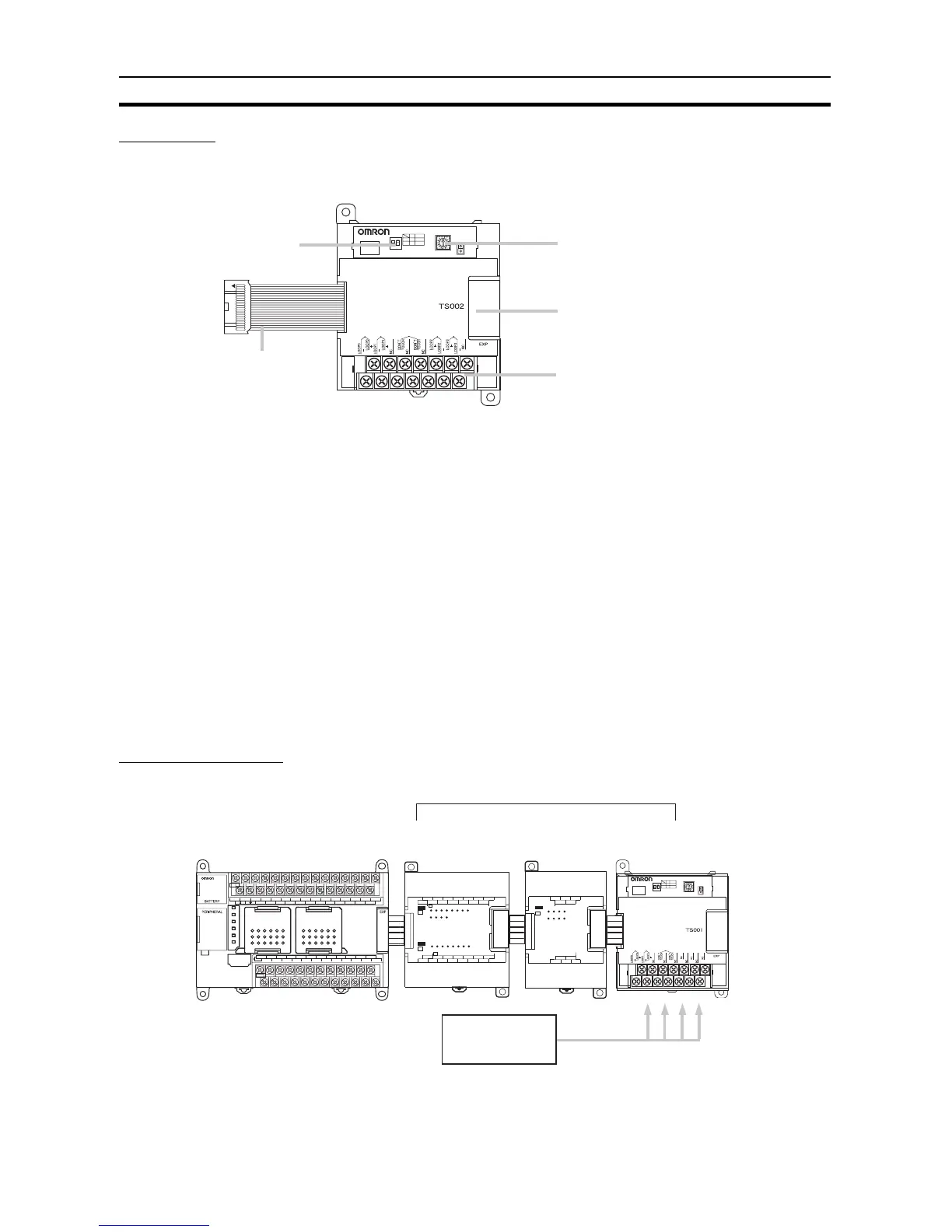
Part Names
Temperature Sensor Units:
CP1W-TS@@@
and CPM1A-TS@@@
(1) Temperature Sensor Input Terminals
Used to connect temperature sensors such as thermocouples or plati-
num resistance thermometers.
(2) DIP Switch
Used to set the temperature unit (°C or °F) and the number of decimal
places used.
(3) Rotary Switch
Used to set the temperature input range. Make the setting according to
the specifications of the temperature sensors that are connected.
(4) Expansion I/O Connecting Cable
Connected to the expansion connector of a CP1L CPU Unit or a Expan-
sion Unit or Expansion I/O Unit. The cable is included with the Tempera-
ture Sensor Unit and cannot be removed.
Note Do not touch the cables during operation. Static electricity may
cause operating errors.
(5) Expansion Connector
Used for connecting Expansion Units or Expansion I/O Units.
Main Specifications
(5) Expansion Connector
(1) Temperature Sensor Input Terminals
(4) Expansion I/O
Connector Cable
(3) Rotary Switch
(2) DIP Switch
SYSMAC
CP1L
L1 L2/N
COM 01 03 05 07 09 11 01 03 05 07 09 11
00 02 04 06 08 10 00 02 04 06 08
10
00 01 02 03 04 06 00 01 03 04 06
COM COM COM COM 05 07 COM 02 COM 05
07
IN
OUT
IN
00
CH
CH
02 04 06 08 10
OUT
01COM 03 05070911
COM COM COM 03COM06
00 01 02 04 05 07
00 01 02 03 04 05 06
07
08 09 10 11
20EDR1
CH
00 01 02 03 04 05 06 07
NC
NC
NC
CH
EXP
IN
00 02
01COM 0
3
COM 0507
04
06
CH
00 01 02 03
08 09 10
11
8ED
EXP
Thermocouples or
platinum resistance
thermometers
Temperature inputs
CP1L CPU Unit
Possible to connect to a maximum of
3 Units including Expansion I/O Units
CP1W-20EDR1/
CPM1A-20EDR1
Expansion I/O Unit
CP1W-8ED/
CPM1A-8ED
Expansion I/O Unit
CP1W-TS@@@/
CPM1A-TS@@@
Temperature Sensor Unit

Table of Contents

Other manuals for Omron CP1L

Related product manuals