EasyManua.ls Logo

Omron CP1L - Compobus;S I;O Link Units

Omron CP1L
763 pages
Print Icon
To Next Page IconTo Next Page
To Next Page IconTo Next Page
To Previous Page IconTo Previous Page
To Previous Page IconTo Previous Page
Loading...
476
CompoBus/S I/O Link Units Section 7-6
Description of Operation
7-6 CompoBus/S I/O Link Units
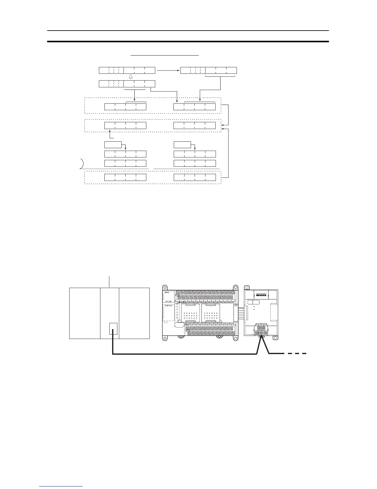
The CP1L can function as a slave to a CompoBus/S Master Unit (or SRM1
CompoBus/S Master Control Unit) when a CP1W-SRT21/CPM1A-SRT21
CompoBus/S I/O Link Unit is connected. The CompoBus/S I/O Link Unit
establishes an I/O link of 8 inputs and 8 outputs between the Master Unit and
the PLC. Up to three CompoBus/S I/O Link Units, including other Expansion I/
O Units, can be connected to a CP1L CPU Unit.
From the standpoint of the CP1L CPU Unit, the 8 input bits and 8 output bits
allocated to the CompoBus/S I/O Link Unit are identical to input and output
bits allocated to Expansion I/O Units even though the CompoBus/S I/O Link
Unit does not control actual inputs and outputs. The input and output bits allo-
cated to the CompoBus/S I/O Link Unit are one side of an I/O link between the
slave CPU Unit and the CPU Unit to which the Master Unit is connected.
CIO 2000
CIO 2002
CIO 2: Leftmost 3 digits of temperature data
0 16
5
16
4
16
3
0 0 16
5
16
4
CIO 2001
16
4
16
3
16
1
16
0
0 16
5
16
4
16
3
CIO 2: Rightmost 3 digits of temperature data
1 16
2
16
1
16
1
(2)
(1)
(9) If temperature data is negative, "8" is written here.
(3)
D101
0/8 10
6
10
5
10
4
D103
0 1 0 0
#0100
CIO 2002
2's complement data
D100
10
3
10
2
10
1
10
0
H1
0 0 16
5
16
4
H0
16
3
16
2
16
1
16
0
(5)
(4)
(1)
D102
0 0 0 0
#0000
CIO 2001
2's complement data
(6)
If the temperature data is
non-negative, binary data is
converted to BCD data.
(8)
If the temperature data is negative,
binary data is converted to BCD data.
(7)
Binary
subtraction
BD L NC( BS-) N C
BD H NC( BS+
)
S
COMM
ERR
ON
12 3
4
5
6
No.
SRT21
EXP
SYSMAC
CP1L
L1 L2/N
COM010305070911010305070911
00 02 04 06 08 10 00 02 04 06 08
10
00 01 02 03 04 06 00 01 03 04 06
COM COM COM COM 05 07 COM 02 COM 05
07
IN
OUT
CP1L CPU Unit
Special flat cable or VCTF cable
CompoBus/S Master Unit
(or SRM1 CompoBus/S
Master Control Unit)
CP1W-SRT21/
CPM1A-SRT21
CompoBus/S
I/O Link Unit

Table of Contents

Other manuals for Omron CP1L

Related product manuals