EasyManua.ls Logo

Omron CP1L - Page 627

Omron CP1L
763 pages
To Next Page IconTo Next Page
To Next Page IconTo Next Page
To Previous Page IconTo Previous Page
To Previous Page IconTo Previous Page
Loading...
593
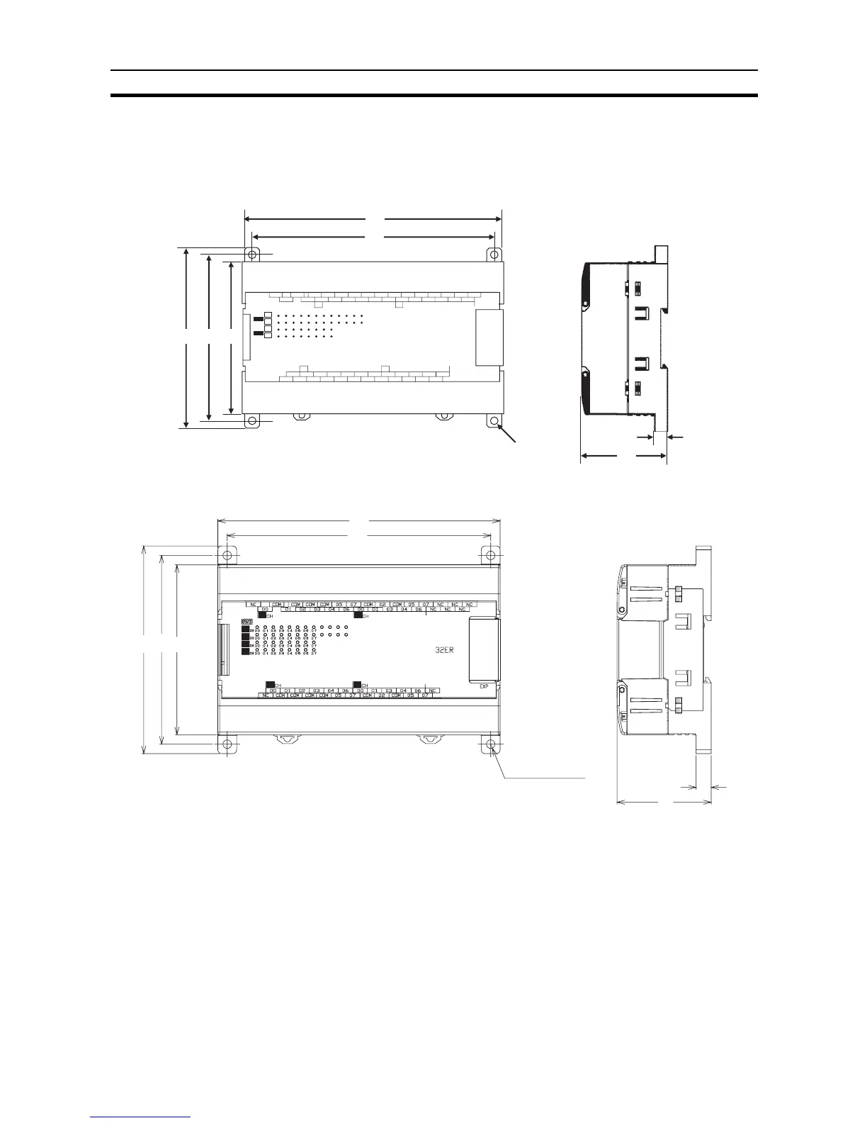
Dimensions Diagrams Appendix B
Expansion I/O Units
40-point I/O Units (CP1W/CPM1A-40EDR/40EDT/40EDT1)
32-point Output Units (CP1W-32ER/32ET/32ET1)
50
8
CH
NC
NC
NC
NC
NC
NC
COM
COM COM COM COM COM COM03 06 01 03 06
00 02 04 06 08 10
00 01 02 04 05 07 00 02 04 05 07
00 02 04 06 08 10
01 03 05 07 09 11 01 03 05 07 09 11
IN
40EDR
OUT
CH CH
CH CH
EXP
CH
CH
CH
111009080706050403020100
111009080706050403020100
0706050403020100
0706050403020100
110 100 90
140
150
Four, 4.5 dia.
holes
Four Ø4.5 holes
150
140
50
8
110
100
90

Table of Contents

Other manuals for Omron CP1L

Related product manuals