EasyManua.ls Logo

Omron CP1L - Page 723

Omron CP1L
763 pages
To Next Page IconTo Next Page
To Next Page IconTo Next Page
To Previous Page IconTo Previous Page
To Previous Page IconTo Previous Page
Loading...
689
Connections to Serial Communications Option Boards Appendix F
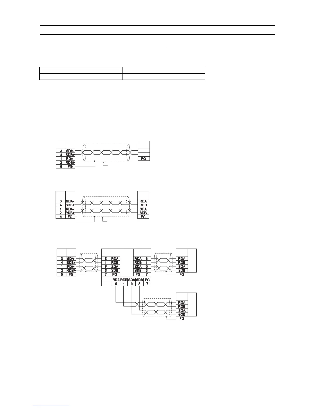
Recommended RS-422A/485 Wiring Examples
Use the following wiring methods for RS-422A/485 to maintain transmission quality.
1. Always use shielded twisted-pair cables as communications cables.
2. Connect the shield of the communications cable to the FG terminal on the RS-422A/485 Option Board. At
the same time, ground the ground (GR) terminal of the CPU Unit to 100 or less.
Note Always ground the shield only at the RS-422A/485 Option Board end. Grounding both ends of the shield
may damage the device due to the potential difference between the ground terminals.
Connection examples are shown below.
2-Wire Connections
4-Wire Connections
Using a B500-AL001-E Link Adapter
Model Manufacturer
CO-HC-ESV-3Px7/0.2 Hirakawa Hewtech Corp.
CP1H CPU Unit
Option Board
Remote device
Shield
Pin
Signal
Signal
A ()
B (+)
CP1H CPU Unit
Option Board
Remote device
Shield
Pin
Signal
Signal
CP1H CPU Unit
Option Board
Remote devic
e
Signal
Pin
RS-422
interface
Remote device
B500-AL001-E
Signal
Signal
Pin
Signal Pin
Pin
Signal
Signal
RS-422
RS-422
RS-422

Table of Contents

Other manuals for Omron CP1L

Related product manuals