EasyManua.ls Logo

Siemens 6RA70 Series - 1180 Amp Base Drive Panel Diagram

Siemens 6RA70 Series
232 pages
To Next Page IconTo Next Page
To Next Page IconTo Next Page
To Previous Page IconTo Previous Page
To Previous Page IconTo Previous Page
Loading...
Siemens Energy & Automation 6-11
SIMOREG DC Master Base Drive Panel Operating Instructions
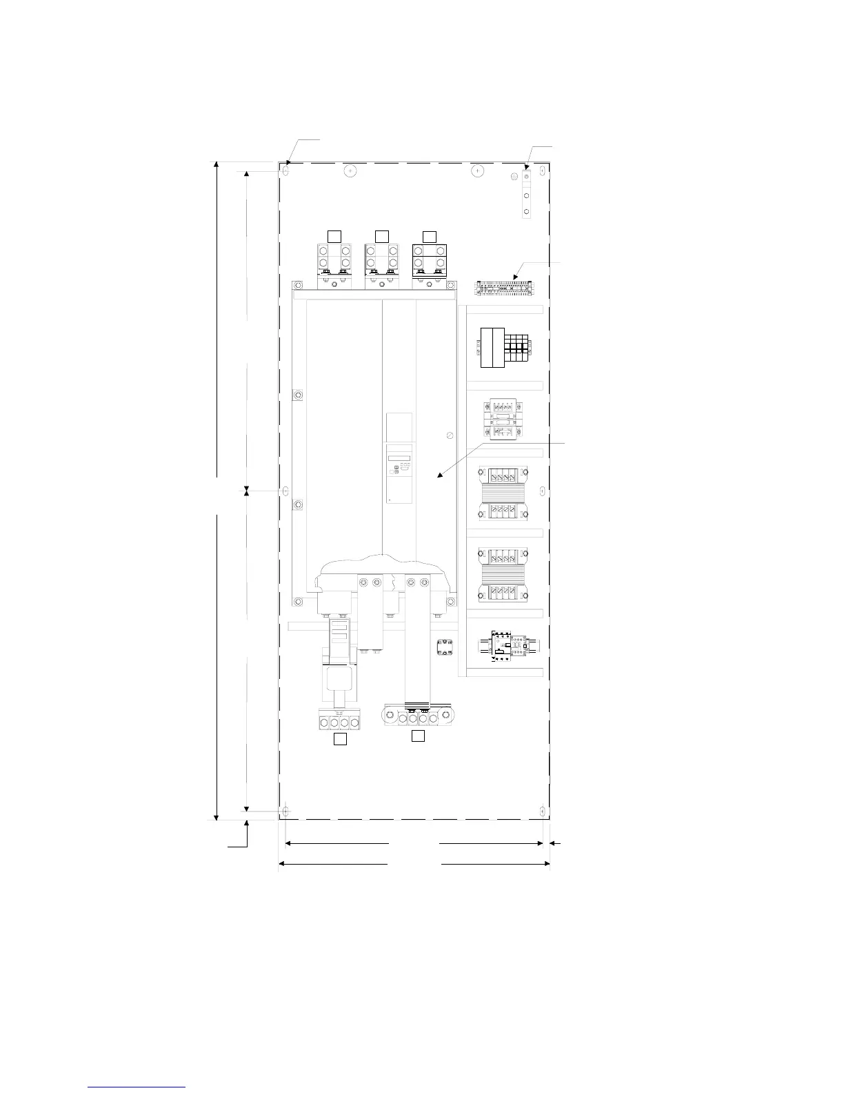
Dimensions are mm (inches)
X300
PM
P
M
1D11C1
H4H2H3H1
X1X2
1FSFU
2FSFU
4CFU
5CFU
6CFU
7CFU
RATED
600V,30A
TM
DO NOT OPEN UNDER LOAD
RATED
600V,30A
TM
DO NOT OPEN UNDER LOAD
RATED
600V,30A
TM
DO NOT OPEN UNDER LOAD
RATED
600V,30A
TM
DO NOT OPEN UNDER LOAD
22 22
1111
11
22
1CTR
X2 XF X1
L2
L1
2CF U
1CF U
2.5A , 600V
2.5A , 600V
1.5A , 250 V
3CFU
H4H2H3H1
2CTR
80
80
81
81 82
82 858483
83 84 85
90 91 92 93 9495 96 97 98 99
99989796959493929190
100
100
101
101102
102
CTB
L3-1L2-1L1-1
GROUND
TERMINAL
MOUNTING SLOTS, FOR M12
(0.50"), SCREWS, 6-PLACES
767 (30.2)
813 (32.0)
23 (0.9)
965
(38.0)
965
(38.0)
1981
(78.0)
25
(1.0)
TERMINALS
80 - 102
NOTE:
SEMICONDUCTOR FUSES
ARE LOCATED INSIDE THE
POWER MODULE, (PM).
L1 L2
L3
A1
A2
NOTE: FROM THE BACK OF THE MOUNTING PANELTO THE TOP
OF THE POWER MODULE, (TALLEST COMPONENT) = 629 (24.8")
1180 AMP BASE DRIVE PANEL, (1 & 4Q)
H4H2H3H1
X1X2
3CTR
EN
MSP
MSPAUX
MREC

Table of Contents

Related product manuals