EasyManua.ls Logo

Siemens 6RA70 Series - Base Drive Panel, 100 Amps, 1 & 4 Quad Schematics

Siemens 6RA70 Series
232 pages
To Next Page IconTo Next Page
To Next Page IconTo Next Page
To Previous Page IconTo Previous Page
To Previous Page IconTo Previous Page
Loading...
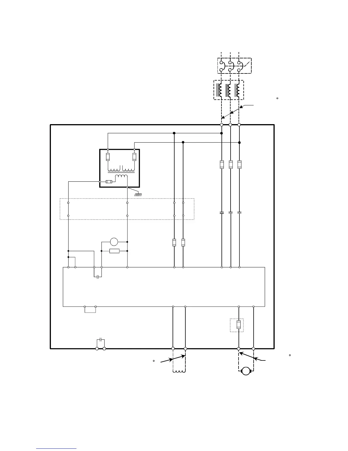
Siemens Energy & Automation 7-5
SIMOREG DC Master Base Drive Panel Operating Instructions
H1 H2 H3 H4
230 V
M
BASE DRIVE PANEL, 100 AMPS, 1 & 4 QUAD
TRANSFORMER
1PFU
2PFU
3PFU
1CFU
3CFU
2CFU
J2
J1
85 82
84 83
POWER MODULE
3U1 3W1 1U1 1V1 1W1
ARMATURE
SUPPLY
FIELD
SUPPLY
1C13C
3D
4PFU
XR
5U1 5W1 5N1
PWR
SUPPLY
PWR
SUPPLY
K1
J4
88
89
1SP
L2L1
XF
X2
J3
86
87
M
XP XP
109
XR
110
XP XF1-2 XF1-1
XF2-2
XF2-1
CTB
125A,500V
A1-FUF-00D-018
150A,700V
A1-FUF-00E-019
1D1
4Q UNITS
ONLY
115VA
A1-TRC-Q0C-285
1.25A,600V
A1-FUF-AFA-006
1CFU - 2CFU
0.75A,250V
A1-FUF-DKA-GBF
3CFU
CONTROL
CONTACTOR
3RT1044-1AP60
SUPPRESSOR
3RT1926-1BD00
MAIN
F(+)
F(-)
CATALOG NO. 6RA7031-6FS22-0Z+X01, (1-QUAD)
CATALOG NO. 6RA7031-6FV62-0Z+X01, (4-QUAD)
1CTR
80
81
#10 AWG, 60 C
TORQUE TO
5 INCH- LBS
A1
A2
MOTOR = 500 VOLTS DC
F.L.A. = 100 AMPS DC
460 VAC
L2
L1
L3
#1 AWG,60 C
TORQUE TO
27 INCH- LBS
MAIN DISCONNECT AND
BRANCH CIRCUIT
PROTECTION SIZED
PER N.E.C.
CUSTOMER SUPPLIED
IF APPLICABLE
#1 AWG,60 C
TORQUE TO
27 INCH- LBS
106 105
XS
E-STOP
XS
MAUX
90 91
1FSFU
2FSFU
20A,700V
A1-FUF-END-C20

Table of Contents

Related product manuals