EasyManua.ls Logo

Siemens SIMATIC IPC RW-545A

Siemens SIMATIC IPC RW-545A
189 pages
To Next Page IconTo Next Page
To Next Page IconTo Next Page
To Previous Page IconTo Previous Page
To Previous Page IconTo Previous Page
Loading...
159
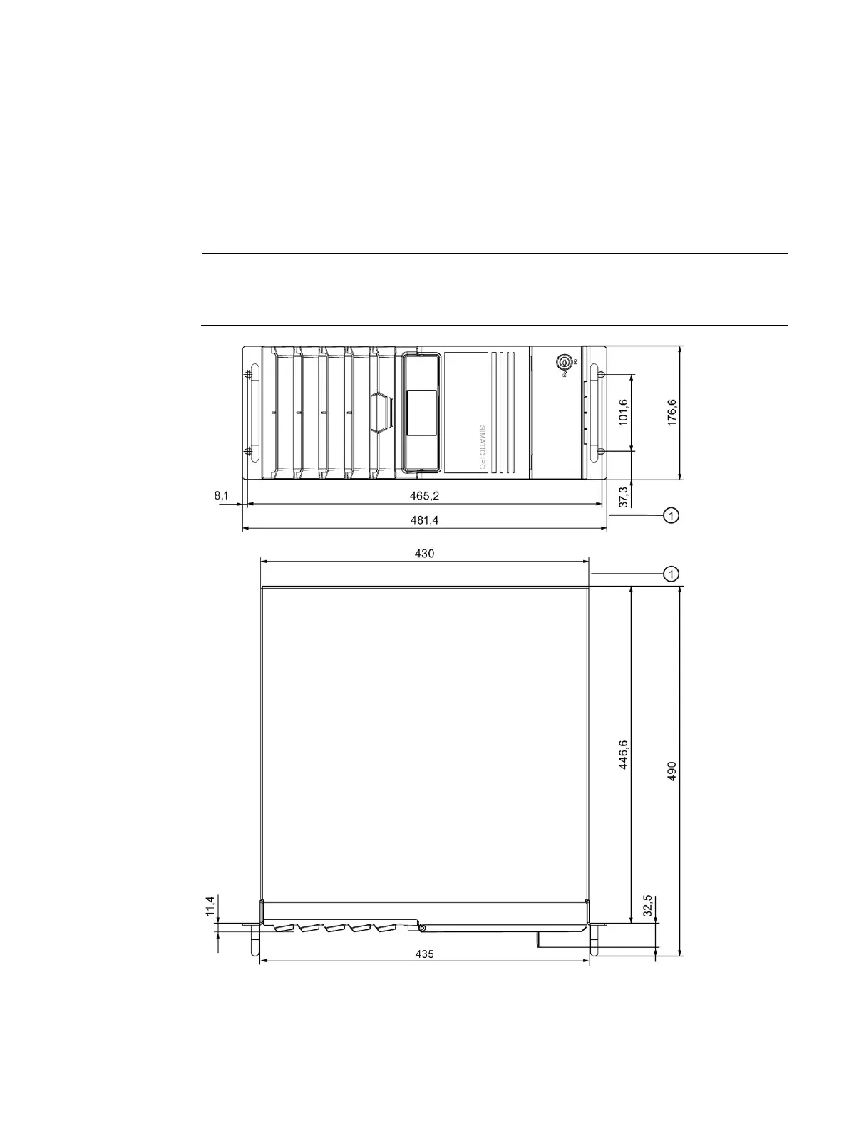
Dimension drawings
10
10.1 Dimension drawing of the device
Note
IEC60297_3_100
The system meets the requirements for 4 U according to IEC60297_3_100.
All dimensions in mm.
Upper side of the device when installed vertically
Workstation SIMATIC IPC RW-545A
Operating Instructions, 08/2023, A5E52943278-AA

Table of Contents

Related product manuals