EasyManua.ls Logo

Siemens SIMATIC IPC RW-545A

Siemens SIMATIC IPC RW-545A
189 pages
To Next Page IconTo Next Page
To Next Page IconTo Next Page
To Previous Page IconTo Previous Page
To Previous Page IconTo Previous Page
Loading...
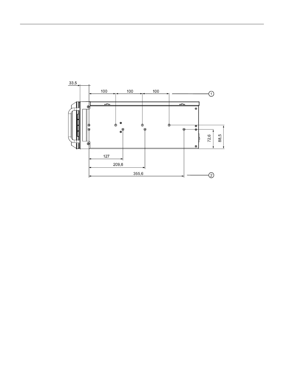
Dimension drawings
10.4 Dimension drawing for drill holes for telescopic rails
162
10.4 Dimension drawing for drill holes for telescopic rails
All dimensions in mm
Dimensions of the Rittal telescopic rails Type 3659
for 600 mm cabinet; TS 3659.181
for 800 mm cabinet; TS 3659.191
Dimensions of Heitec telescopic rails
for 600 mm cabinet; RP 3659.181
for 800 mm cabinet; RP 3659.191
Dimensions of Schroff telescopic rails; Type 20110-072
Workstation SIMATIC IPC
RW-545A Operating
Instructions, 08/2023, A5E52943278-AA

Table of Contents

Related product manuals