EasyManua.ls Logo

Wacker Neuson WL 50 - SAFETY INSTRUCTIONS FOR REPAIRS

Wacker Neuson WL 50
254 pages
Print Icon
To Next Page IconTo Next Page
To Next Page IconTo Next Page
To Previous Page IconTo Previous Page
To Previous Page IconTo Previous Page
Loading...
TROUBLESHOOTING AND EMERGENCY MAINTENANCE
226
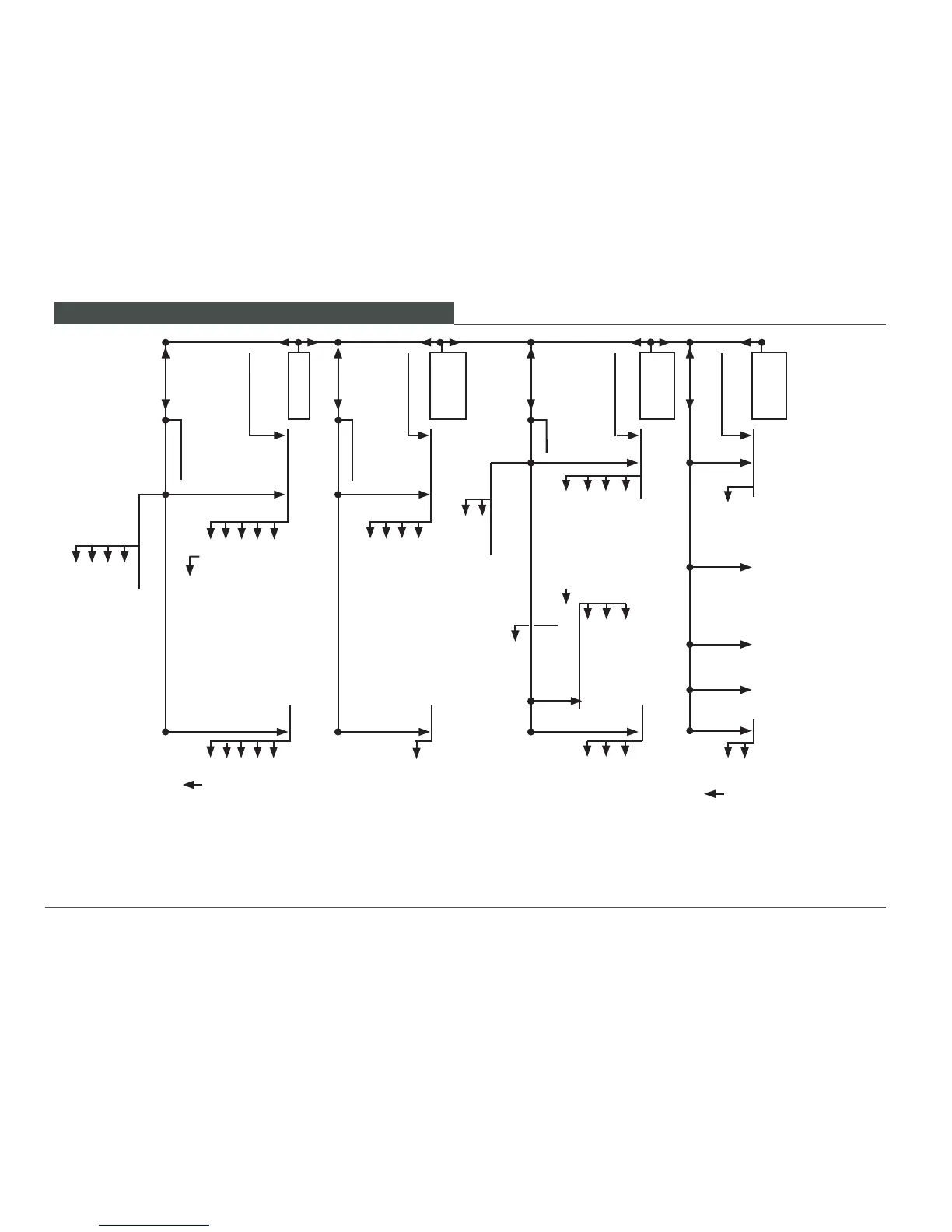
Troubleshooting for transmission pump / oil engine
Suction
pressure
Control pres-
sure
High pressure
Supply pres-
sure
»S«
Transmission pump
X
1/X2 Transmission pump
M
A/MB Transmission pump
»G«
Transmission pump
Suction hose
Oil grade
Temperature
Cooler
Rotary direc-
tion
Auxiliary pump
Supply pressure valve
Wear
Oil temperature
Speed
Connection (coupling) Drive engine pump
Measuring point
Measuring point
Measuring point
Measuring point
Cause
Cause
Cause
Cause
Suction pressure
Supply pressure
Control pressure
Suction pressure
Supply pressure
Filter
System
Accessories
Brake / accumulator
Cooler
Wear
Choke
High-pressure valves not blocked
Connecting wire
Scavenging valve
Pressure cut-off
Cut-off
Speed max./min.
Clutch
Scavenging needle
Control unit / Solenoid
Transposition
Diesel lter
Brake
Wear
Air lter
Waste oil-leakage
Oil temperature
Diesel engine
General performance
Oil temperature
Cooler
Cooler
DA Pressure cut-off for control valve/inching/
rotary choke
Reservoir
Oil motor
Oil
Oil motor
Oil motor
Oil temperature
Bypass valve

Table of Contents

Related product manuals