EasyManua.ls Logo

A&D AD-4971 - Dimensions

A&D AD-4971
84 pages
Print Icon
To Next Page IconTo Next Page
To Next Page IconTo Next Page
To Previous Page IconTo Previous Page
To Previous Page IconTo Previous Page
Loading...
12
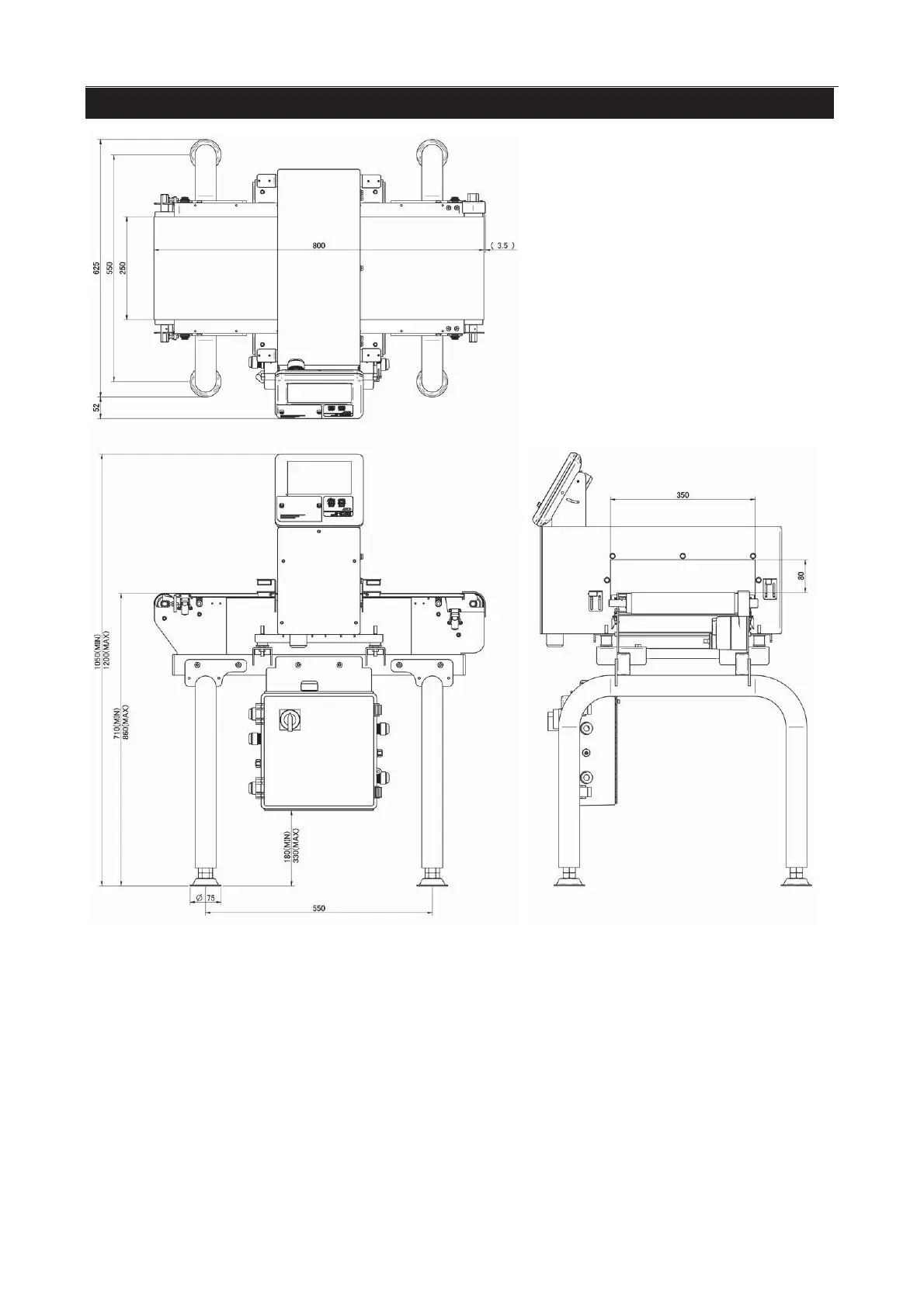
Specifications
- 12.2
Dimensions
75
1
12.2.
Dimensions

Table of Contents