EasyManua.ls Logo

ABB ACS880-107

ABB ACS880-107
212 pages
To Next Page IconTo Next Page
To Next Page IconTo Next Page
To Previous Page IconTo Previous Page
To Previous Page IconTo Previous Page
Loading...
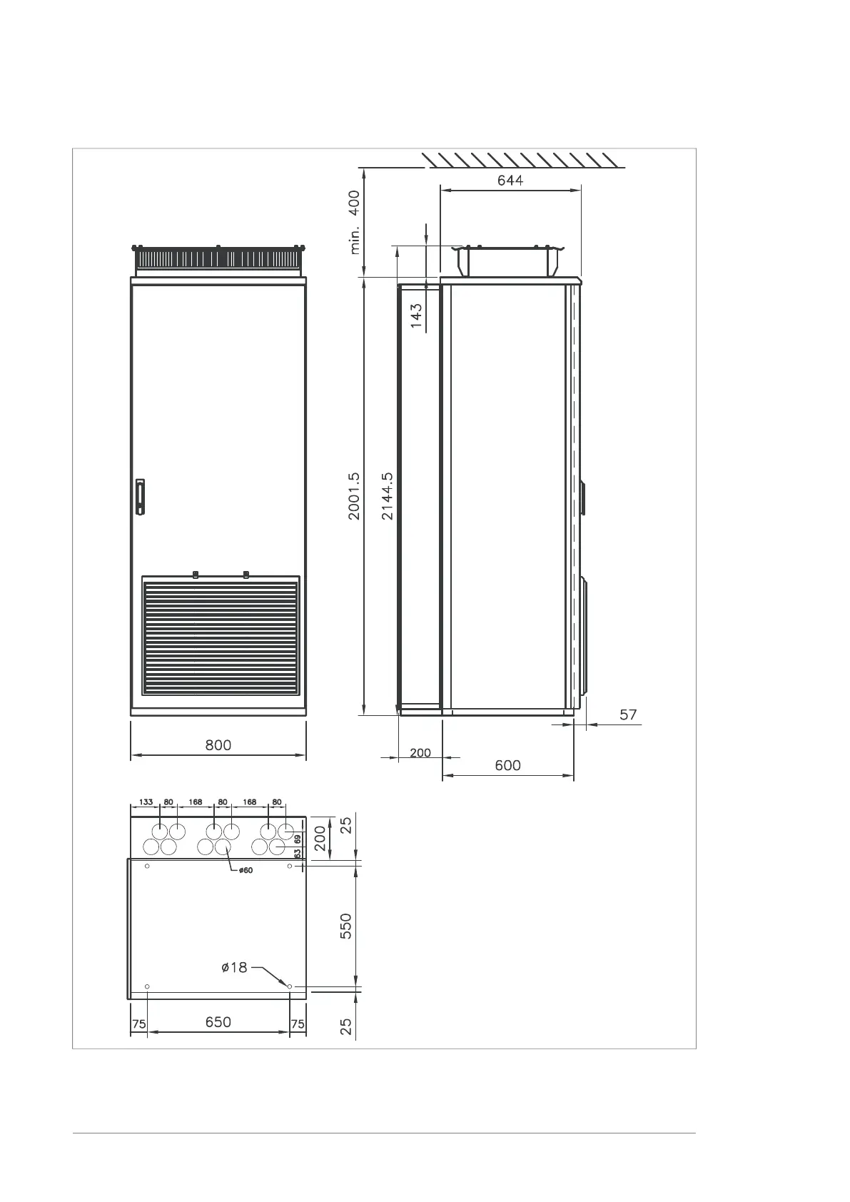
Dimension drawing 3×R8i (without +C128 or +H353), top cable exit
174 Dimensions and weights

Table of Contents

Related product manuals