EasyManua.ls Logo

ABB ACS880-107

ABB ACS880-107
212 pages
To Next Page IconTo Next Page
To Next Page IconTo Next Page
To Previous Page IconTo Previous Page
To Previous Page IconTo Previous Page
Loading...
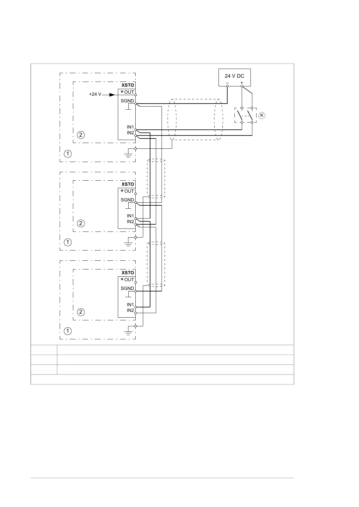
External power supply
OUT
SGND
IN1
IN2
OUT
SGND
IN1
IN2
OUT
SGND
IN1
IN2
+24 V
24 V DC
–+
K
XSTO
XSTO
XSTO
1
2
1
2
1
2
*
*
*
Inverter unit1
Control unit2
Activation switchK
* OUT1 in inverters with ZCU-12 control units.
198 The Safe torque off function

Table of Contents

Related product manuals