EasyManua.ls Logo

ABB ACS880-107

ABB ACS880-107
212 pages
To Next Page IconTo Next Page
To Next Page IconTo Next Page
To Previous Page IconTo Previous Page
To Previous Page IconTo Previous Page
Loading...
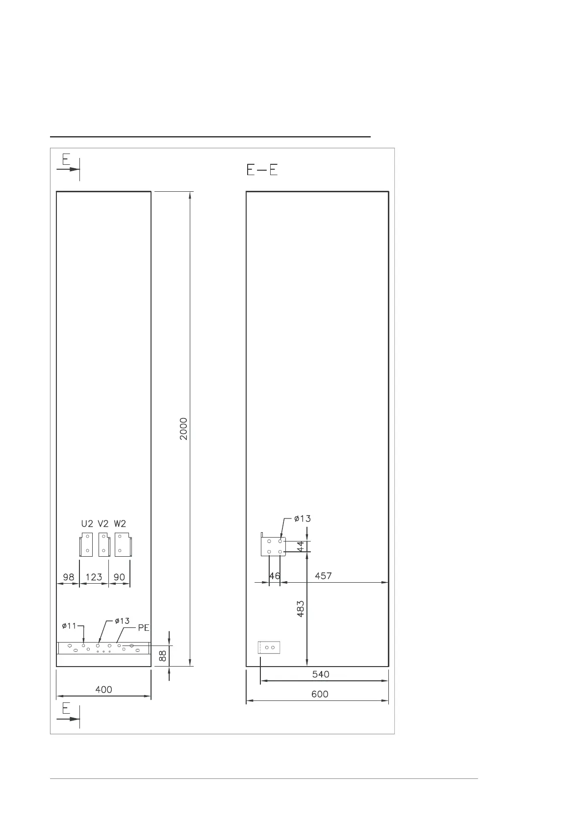
Location and size of output terminals
Units without common motor terminal cubicle
Inverter module cubicle with one R8i module, bottom cable exit
176 Dimensions and weights

Table of Contents

Related product manuals