EasyManua.ls Logo

ABB ACS880-107

ABB ACS880-107
212 pages
To Next Page IconTo Next Page
To Next Page IconTo Next Page
To Previous Page IconTo Previous Page
To Previous Page IconTo Previous Page
Loading...
The cubicle is available in bottom-exit and top-exit variants. The standard cabling
direction is down; top exit adds 200 mm to the depth of the cubicle.
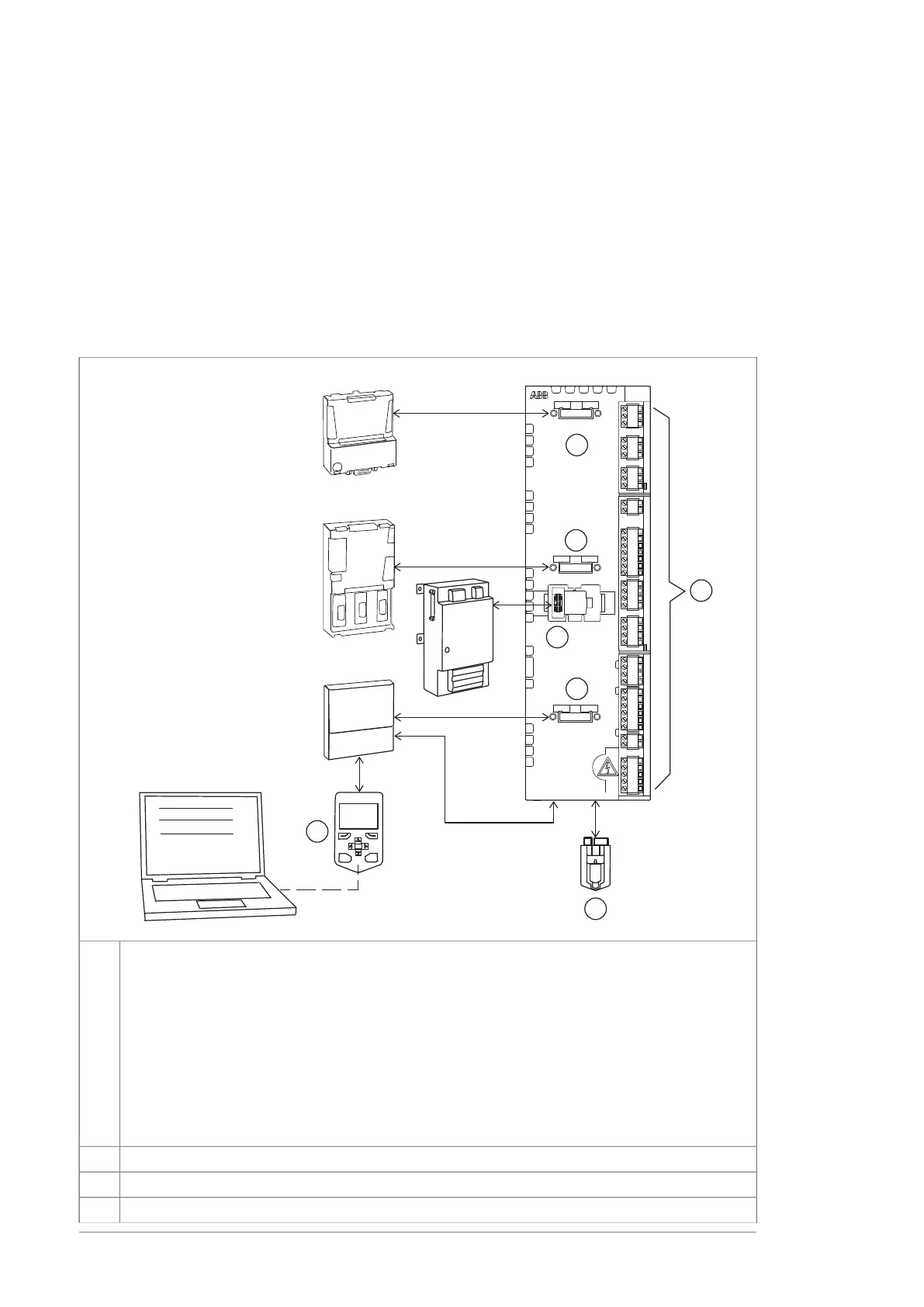
Control interfaces
Overview of control connections of the ZCU control unit
The diagram shows the control connections and interfaces of the ZCU-14 control unit.
It is used with module frame sizes R1i…R7i. Frame R5i modules use a type ZCU-12 unit
which has a different layout but the same connectivity as the ZCU-14.
FXX
FSO
FXXX
SLOT 1
SLOT 2
SLOT 3
X12
SAFETY
OPTION
X208
FAN2
X210
FAN1
X209
AIR IN
TEMP
X13
CONTROL PANEL
X205
MEMORY UNIT
X
R
O
2
X
R
O
3
X
P
O
W
J1J2
X
A
I
X
A
O
X
D
2
D
X
S
T
O
X
D
I
X
D
I
O
J6
X
D
2
4
X
R
O
1
J3
CLOSE
FDPI
1
2
3
4
5
6
7
Option modules can be inserted into slots 1, 2 and 3 as follows:1
SlotsModules
1, 2, 3Analog and digital I/O extension modules
1)
1, 2, 3Feedback interface modules
1, 2, 3Fieldbus communication modules
2 (X12)FSO safety functions module
2
3
1) When installed into slot 3 of a ZCU-14 control unit, the module will extend over the edge. ABB
recommends that you use slot 1 or 2 instead whenever possible.
Memory unit4
Connector for FSO safety functions module (X12). The module reserves slot 2 when connected.5
I/O terminal blocks6
32 Operation principle and hardware description

Table of Contents

Related product manuals