EasyManua.ls Logo

ABB ACS880-107

ABB ACS880-107
212 pages
To Next Page IconTo Next Page
To Next Page IconTo Next Page
To Previous Page IconTo Previous Page
To Previous Page IconTo Previous Page
Loading...
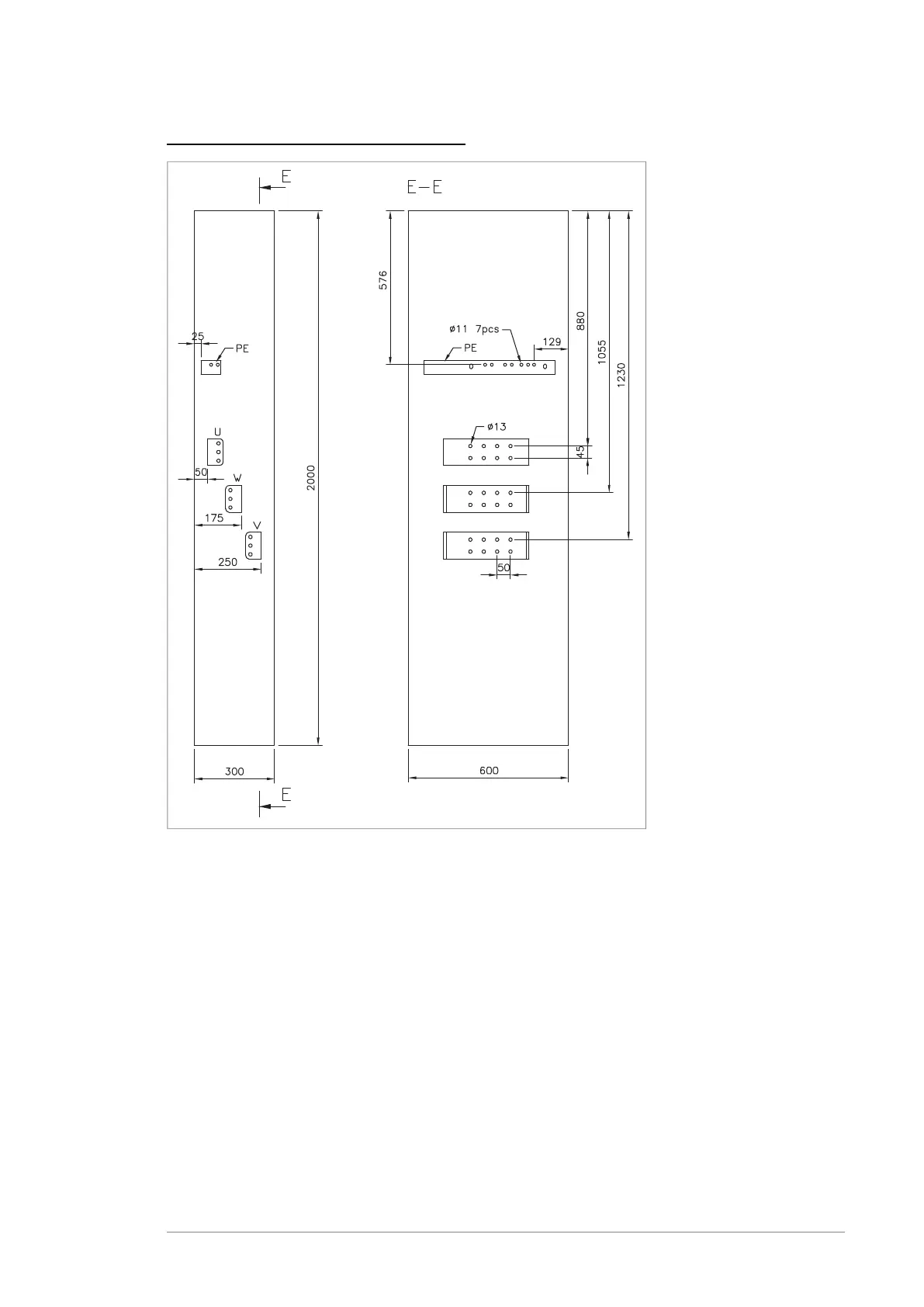
Cubicle width 300 mm, top cable exit
Dimensions and weights 185

Table of Contents

Related product manuals