EasyManua.ls Logo

ADCMT 6244 - 4. PRACTICAL GUIDE FOR MEASUREMENTS; 4.1 DUT Connection

Default Icon
296 pages
Print Icon
To Next Page IconTo Next Page
To Next Page IconTo Next Page
To Previous Page IconTo Previous Page
To Previous Page IconTo Previous Page
Loading...
6243/44 DC Voltage Current Source/Monitor Operation Manual
4. PRACTICAL GUIDE FOR MEASUREMENTS
4-1
4. PRACTICAL GUIDE FOR MEASUREMENTS
This chapter explains the practical guide for individual measurements.
4.1 DUT Connection
4.1.1 Precautions for the Output Terminals (Front and Rear Output Terminals)
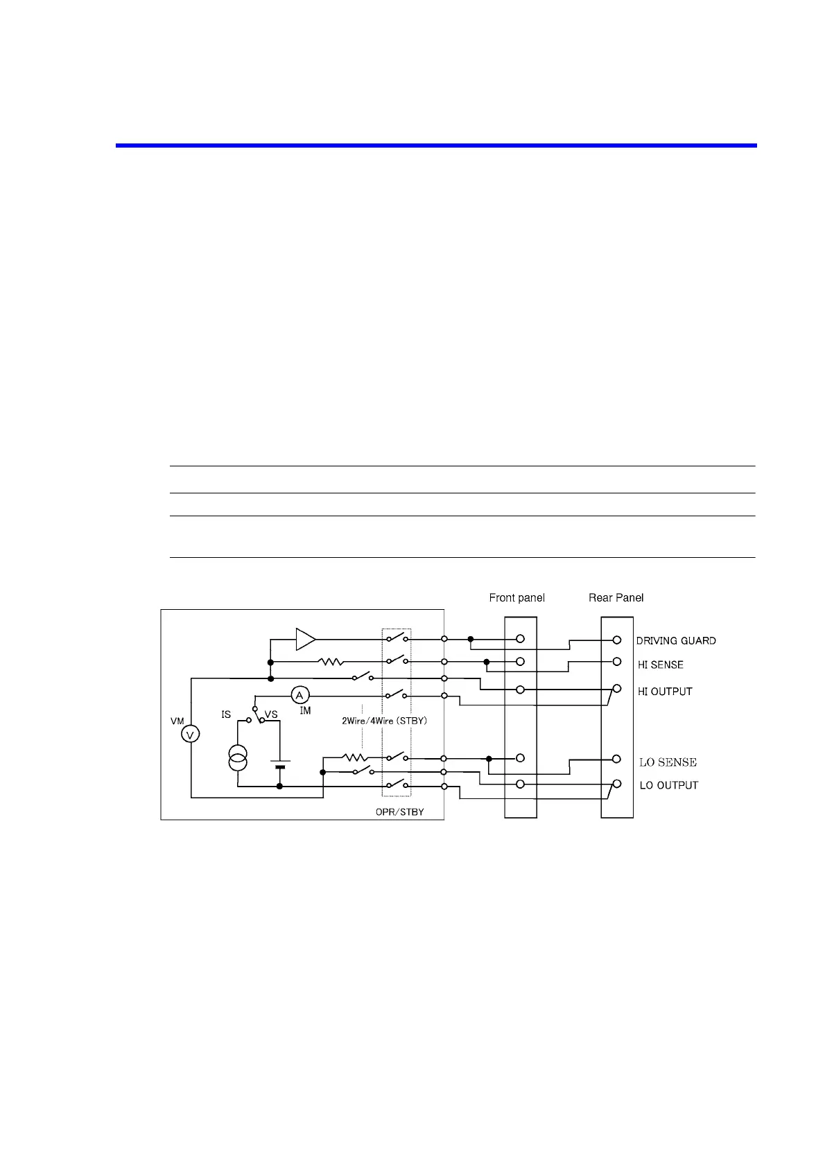
Figure 4-1 and Figure 4-2 show the internal wiring of the 6243/44.
The output terminals are cut off from the internal circuit during Standby by the Operate/Standby relay.
Only for 6243, the front output terminals and rear output terminals are connected during Standby.
NOTE: For the 6243, connect the DUT using either the front output terminals or the rear output terminals.
CAUTION: If an external power source, like a battery, is connected to both the front output terminals and rear
output terminals, a short circuit will occur internally.
Figure 4-1 Internal Wiring (6243)

Table of Contents

Related product manuals