EasyManua.ls Logo

Delta VFD-E - Installation with Metal Separation; Installation Without Metal Separation

Delta VFD-E
395 pages
Print Icon
To Next Page IconTo Next Page
To Next Page IconTo Next Page
To Previous Page IconTo Previous Page
To Previous Page IconTo Previous Page
Loading...
Chapter 1 Introduction|
Revision Jan. 2009, 06EE, SW--PW V1.12/CTL V2.12 1-11
5. The heat sink temperature may rise to 90°C when running. The material on which the AC motor
drive is mounted must be noncombustible and be able to withstand this high temperature.
6. When AC motor drive is installed in a confined space (e.g. cabinet), the surrounding
temperature must be within 10 ~ 40°C with good ventilation. DO NOT install the AC motor drive
in a space with bad ventilation.
7. Prevent fiber particles, scraps of paper, saw dust, metal particles, etc. from adhering to the
heatsink.
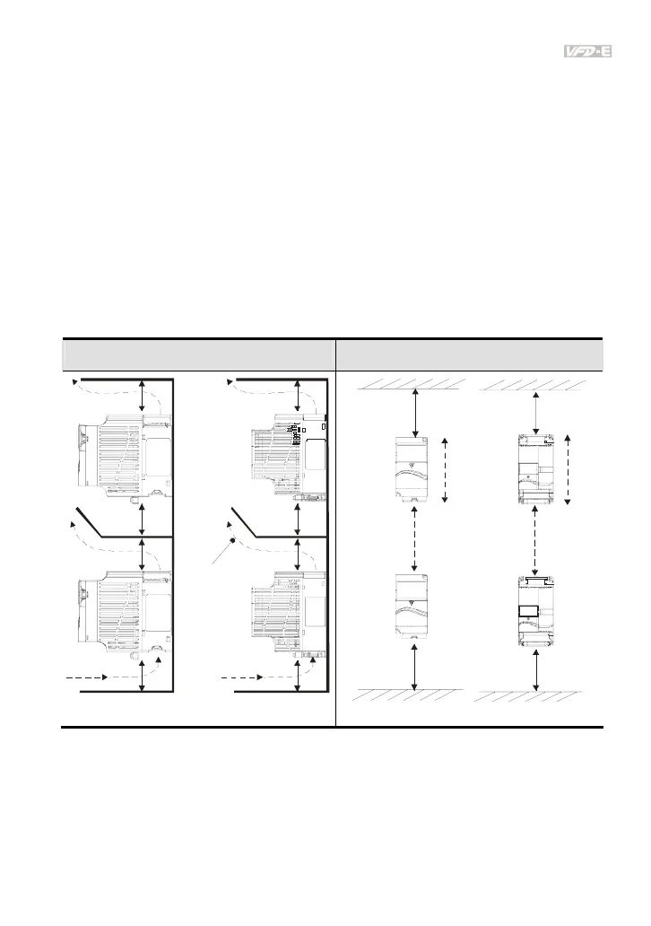
8. When installing multiple AC more drives in the same cabinet, they should be adjacent in a row
with enough space in-between. When installing one AC motor drive below another one, use a
metal separation between the AC motor drives to prevent mutual heating.
Installation with Metal Separation Installation without Metal Separation
120mm
120mm
120mm
120mm
150mm
150mm
150mm
150mm
Air flow
Frame A Frame B, C and D
120mm
120mm
150mm
150mm
A
B
A
B
Frame A
Frame B, C and D

Table of Contents

Related product manuals