EasyManua.ls Logo

Delta VFD-E - Mke-Dra; B.11 DIN Rail

Delta VFD-E
395 pages
Print Icon
To Next Page IconTo Next Page
To Next Page IconTo Next Page
To Previous Page IconTo Previous Page
To Previous Page IconTo Previous Page
Loading...
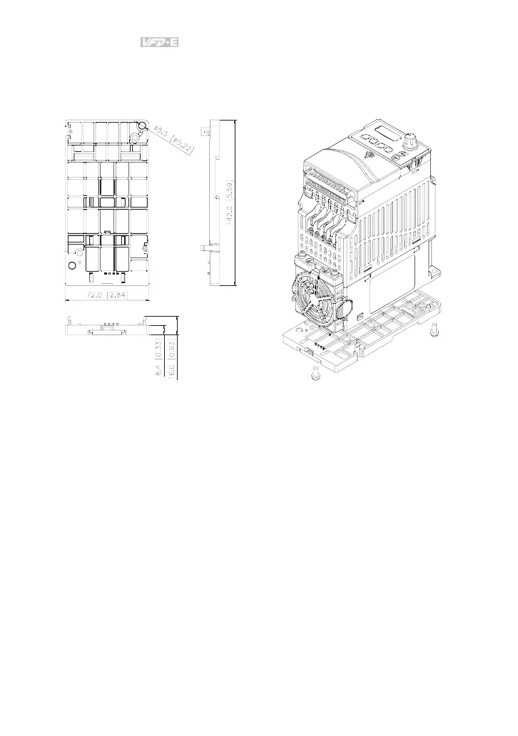
Appendix B Accessories|
B-38 Revision Jan. 2009, 06EE, SW--PW V1.12/CTL V2.12
B.11 DIN Rail
B.11.1 MKE-DRA

Table of Contents

Related product manuals