EasyManua.ls Logo

Delta VFD-E - Page 32

Delta VFD-E
395 pages
Print Icon
To Next Page IconTo Next Page
To Next Page IconTo Next Page
To Previous Page IconTo Previous Page
To Previous Page IconTo Previous Page
Loading...
Chapter 2 Installation and Wiring|
Revision Jan. 2009, 06EE, SW--PW V1.12/CTL V2.12 2-3
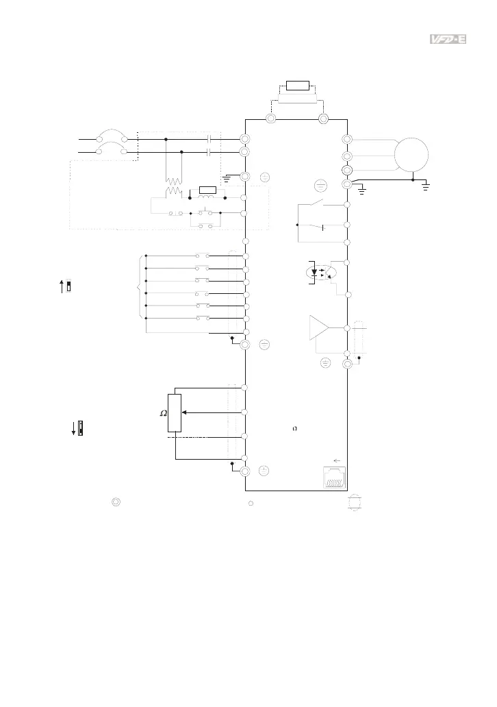
Figure 1 for models of VFD-E Series
VFD002E11A/21A, VFD004E11A/21A, VFD007E21A, VFD002E11C/21C, VFD004E11C/21C,
VFD007E21C, VFD002E11P/21P, VFD004E11P/21P, VFD007E21P
AVI
ACI
ACM
+
+10V
5K
3
2
1
Power supply
+10V 20mA
Master Frequency
0 to 10V 47K
Analog Signal Common
E
Main circuit (power) terminals
Control circuit terminals
Shielded leads & Cable
E
R(L1)
S(L2)
Fuse/NFB(None Fuse Breaker)
SA
OFF
ON
MC
MC
RB
RC
Recommended Circuit
when power supply
is turned OFF by a
fault output
If the fault occurs, the
contact will be ON to
turn off the power and
protect the power system.
R(L1)
S(L2)
E
Analog Multi-function Output
Te r m ina l
factory setting: Analog freq.
/ c ur ren t meter
0~10VDC/2mA
U(T1)
V(T2)
W(T3)
IM
3~
AFM
ACM
RA
RB
RC
Motor
Factory setting:
Drive is in operation
48V50mA Max.
Multi-function
Photocoulper Output
Analog Signal common
E
E
MO1
MCM
MI1
MI2
MI3
MI4
MI6
MI5
DCM
+24V
FWD/Stop
REV/Stop
Multi-step 1
Multi-step 2
Multi-step 3
Multi-step 4
Digital Signal Common
Factory
setting
Sw2
AVI
ACI
Factory setting:
ACI Mode
ACI/AVI switch
When switching to AVI,
it indicates AVI2
-
8
1
Sw1
NPN
PNP
Factory setting:
NPN Mode
Please refer to Figure 7
for wiring of NPN
mode and PNP
mode.
BUE
brake unit
(optional)
BR
brake resisto
r
(opti onal)
Multi-function contact output
Refer to chapter 2.4 for details.
Fac tory setting is
malfunction indication
Factory setting: output frequency
4-20mA/0-10V
RS-485 serial interface
(NOT for VFD*E*C models)
1: Reserved
2: EV
5: SG+
6: Reserved
7: Reserved
8: Reserved
3: GND
4: SG-
For VFD*E*C models,
please refer to figure 8.

Table of Contents

Related product manuals