EasyManua.ls Logo

Delta VFD-E - Page 35

Delta VFD-E
395 pages
Print Icon
To Next Page IconTo Next Page
To Next Page IconTo Next Page
To Previous Page IconTo Previous Page
To Previous Page IconTo Previous Page
Loading...
Chapter 2 Installation and Wiring|
2-6 Revision Jan. 2009, 06EE, SW--PW V1.12/CTL V2.12
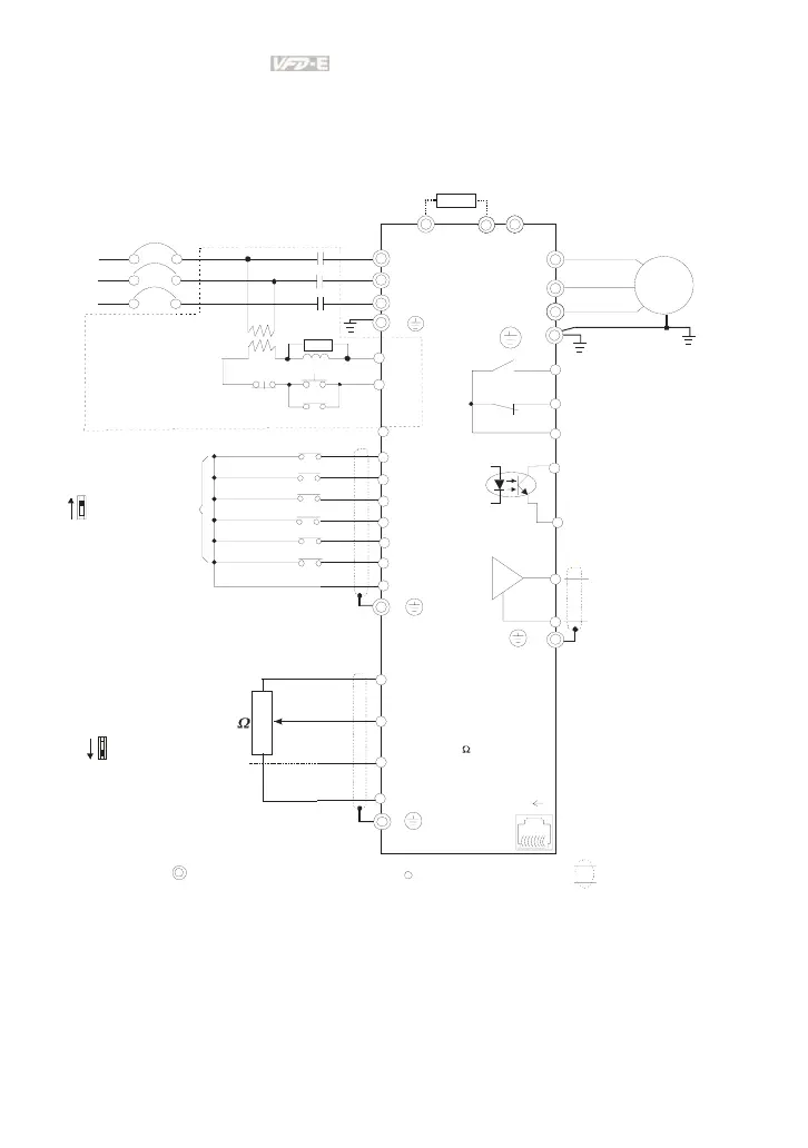
Figure 4 for models of VFD-E Series
VFD022E23A/43A, VFD037E23A/43A, VFD055E23A/43A, VFD075E23A/43A, VFD110E23A/43A,
VFD022E23C/43C, VFD037E23C/43C, VFD055E23C/43C, VFD075E23C/43C, VFD110E23C/43C,
VFD150E23A/23C, VFD150E43A/43C, VFD185E43A/43C, VFD220E43A/43C
AVI
ACI
ACM
+/B1
+10V
5K
3
2
1
Power supply
+10V 20mA
Master Frequency
0 to 10V 47K
Analog Signal Common
E
Main circ uit (power) terminals
Control circuit terminals
Shielded leads & Cable
E
R(L1)
S(L2)
Fuse/NFB(No Fuse B reaker)
SA
OFF
ON
MC
MC
RB
RC
Recommended Circuit
when power supply
is turned OFF by a
fault output
If the fault occurs, the
contact will be ON to
turn off the power and
protect the power system.
R(L1)
S(L2)
E
Analog Multi-function
Output Terminal
factory setting: Analog
freq./ current meter
0~10VDC/ 2mA
U(T1)
V(T2)
W(T3)
IM
3~
AFM
ACM
RA
RB
RC
Motor
Factory setting:
Drive is in operation
48V50mA Max.
Multi-function
Photocoulper Output
Analog Signal common
E
E
MO1
MCM
MI1
MI2
MI3
MI4
MI6
MI5
DCM
+24V
FWD/Stop
REV/Stop
Multi-step 1
Multi-step 2
Multi-step 3
Multi-step 4
Digital Signal Common
Factory
setting
Sw2
AVI
ACI
Factory setting:
ACI Mode
ACI/AVI switch
When switching to AVI,
it indicates AVI2
-
8
1
Sw1
NPN
PNP
Factory setting:
NPN Mode
Please refer to Figure 7
for wiring of NPN
mode and PNP
mode.
brake resisto
r
(o pti onal)
Multi-function contact output
Refer to chapter2.4 for details.
Factory setting is
malfunction indication
Factory setting: output
frequency
4-20mA/0-10V
T(L3)
T(L3)
BR
B2
RS-485 serial interface
(NOT for VFD*E*C models)
1: Reserved
2: EV
5: SG+
6: Reserved
7: Reserved
8: Reserved
3: GND
4: SG-
For VFD*E*C models,
please refer to figure 8.

Table of Contents

Related product manuals