EasyManua.ls Logo

Honeywell 5704 - Page 89

Honeywell 5704
191 pages
Print Icon
To Next Page IconTo Next Page
To Next Page IconTo Next Page
To Previous Page IconTo Previous Page
To Previous Page IconTo Previous Page
Loading...
4-26
MAN0448_Issue 13_01-2010 5704 Control System
005704-M-5001 A03249
CHAPTER 4 - INSTALLATION INSTRUCTIONS
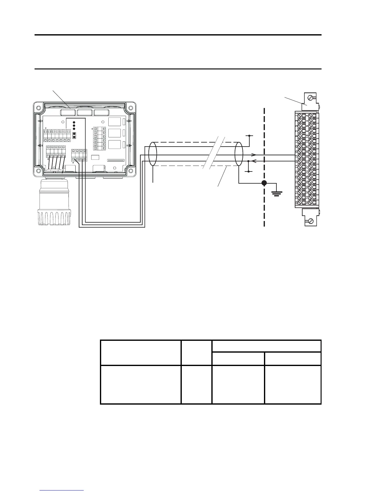
Notes: 1. Where the sensor is earthed locally, either to the stud or through
the sensor casing or mounting, to avoid earth loops the screen
sheath should only be connected at one end, i.e. the sensor
or at the relay/interface card.
2. The above diagram shows the sensor connections for Channel
1. Channels 2, 3 and 4 connections are similar and their pin
connection numbers are shown below:
Channel Sensor Connection
01 NS
Quad Relay 1 17 19
Interface Connections 2 18 20
3 23 25
4 24 26
Three Wire Control Card Current Sink, Transmitter Current
Source Connection for Opus/Lifeline II
(Signal Returned to 0V)
* 24V supply may be obtained
from either the cabinet or a
separate eld supply
Screened
Cable
Arrows Indicate
Direction of Loop
Current Flow
01
NS
Quad Relay Interface Card
05704-A-0121
Opus/Lifeline II Transmitter
17
19
Screen to
cable gland
Cabinet
Protective
Earth
+24V*
0V*
J4
J5
1
3
6

Table of Contents

Related product manuals