EasyManua.ls Logo

Honeywell 5704 - Page 90

Honeywell 5704
191 pages
Print Icon
To Next Page IconTo Next Page
To Next Page IconTo Next Page
To Previous Page IconTo Previous Page
To Previous Page IconTo Previous Page
Loading...
4-27
CHAPTER 4 - INSTALLATION INSTRUCTIONS
MAN0448_Issue 13_01-2010 5704 Control System
005704-M-5001 A03249
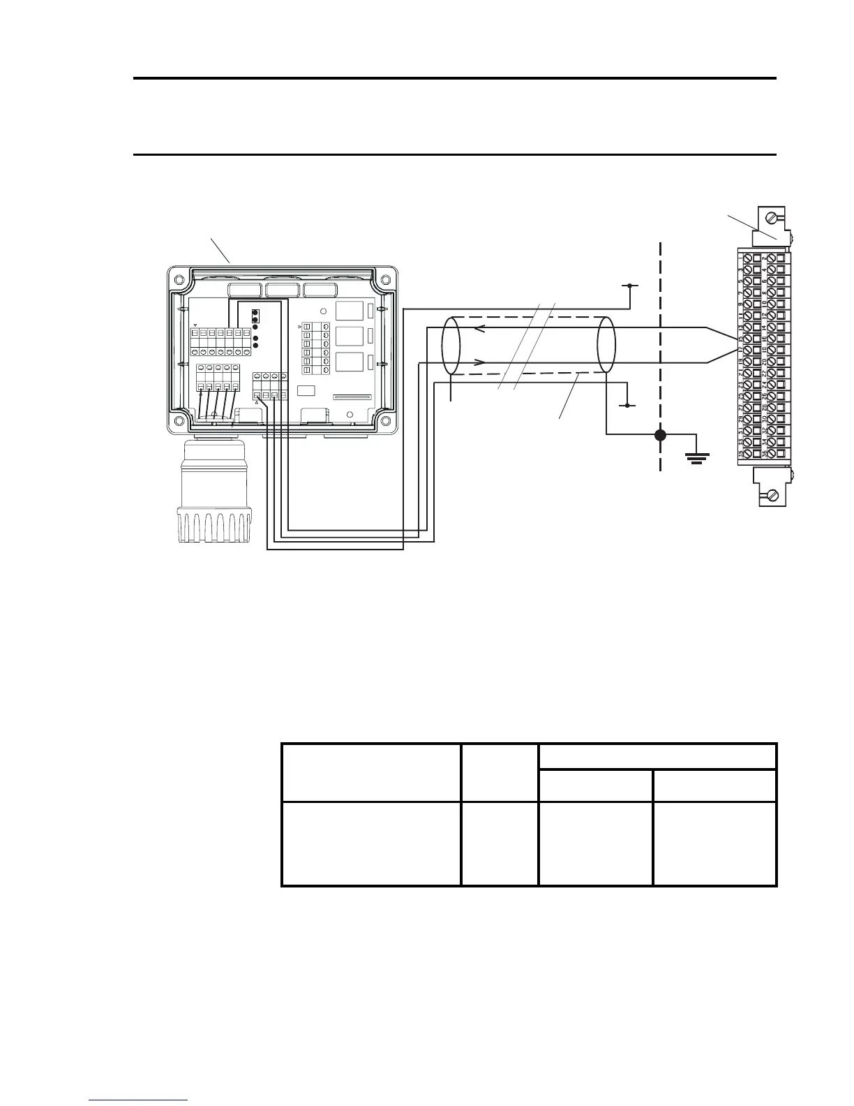
Notes: 1. Where the sensor is earthed locally, either to the stud or through
the sensor casing or mounting, to avoid earth loops the screen
sheath should only be connected at one end, i.e. the sensor
or at the relay/interface card.
2. The above diagram shows the sensor connections for
Channel 1. Channels 2, 3 and 4 connections are similar and
their pin connection numbers are shown below:
Channel Transmitter Connection
S 01
Quad Relay 1 15 17
Interface Connections 2 16 18
3 21 23
4 22 24
Four Wire Isolated Signal Input, Transmitter Connection for
Opus/Lifeline II
S
01
Screened
Cable
Quad Relay Interface Card
05704-A-0121
15
17
Cabinet
Protective
Earth
+24V*
0V*
Opus/Lifeline II Transmitter
* 24V supply may be obtained
from either the cabinet or a
separate eld supply
Arrows Indicate
Direction of Loop
Current Flow
5
6
Screen to
cable gland
1
3
J4
J5

Table of Contents

Related product manuals