EasyManua.ls Logo

Honeywell 5704 - Page 92

Honeywell 5704
191 pages
Print Icon
To Next Page IconTo Next Page
To Next Page IconTo Next Page
To Previous Page IconTo Previous Page
To Previous Page IconTo Previous Page
Loading...
4-29
CHAPTER 4 - INSTALLATION INSTRUCTIONS
MAN0448_Issue 13_01-2010 5704 Control System
005704-M-5001 A03249
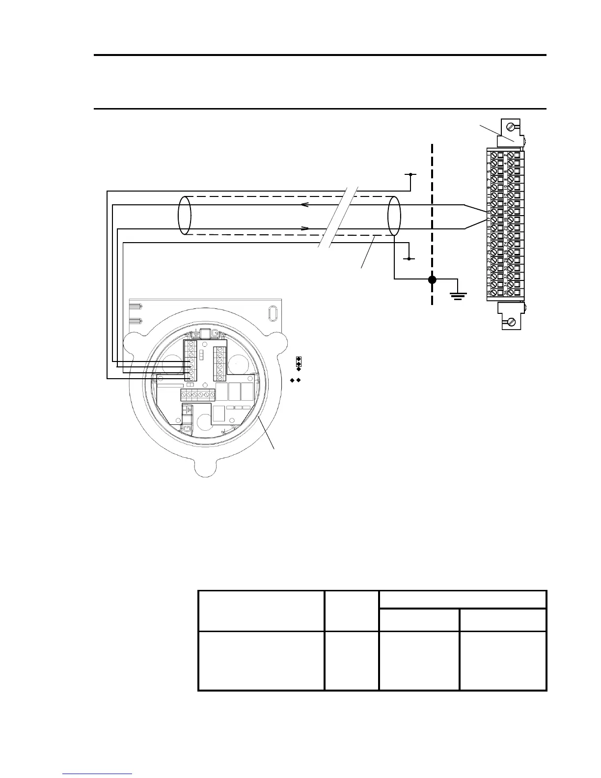
Note: 1. The Apex Transmitter should be earthed locally. The
transmitter is earthed through the Earth Stud, to avoid
earth loops the screen sheath of the cable
should only be connected at the transmitter.
2. The above diagram shows the sensor connections for
Channel 1. Channels 2, 3 and 4 connections are similar and
their pin connection numbers are shown below:
Channel Transmitter Connection
S 01
Quad Relay 1 15 17
Interface Connections 2 16 18
3 21 23
4 22 24
Four Wire Isolated Signal Input, Transmitter Connection for
Apex
S
01
Screened
Cable
Arrows Indicate
Direction of Loop
Current Flow
+24V
4 - 20mA(-)
4 - 20mA(+)
0V
Quad Relay Interface Card
05704-A-0121
15
17
Cabinet
Protective
Earth
+24V*
0V*
Apex Transmitter
SK4
(Comms
and
Power)
Apex
1
2
3
4
5
6
7
Apex Link
Settings:
J4
J5
* 24V supply may be obtained
from either the cabinet or a
separate eld supply

Table of Contents

Related product manuals