EasyManua.ls Logo

Kollmorgen S700

Kollmorgen S700
166 pages
To Next Page IconTo Next Page
To Next Page IconTo Next Page
To Previous Page IconTo Previous Page
To Previous Page IconTo Previous Page
Loading...
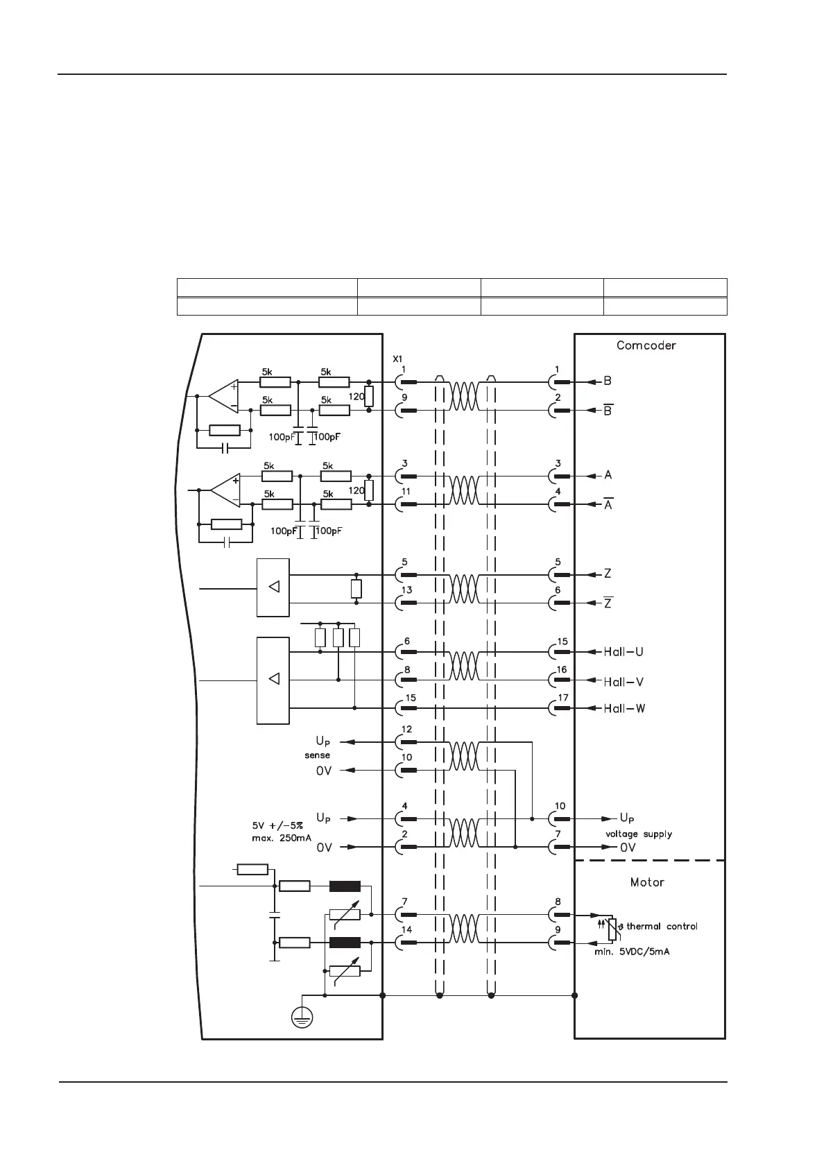
7.12.12 ROD (AquadB) 5V, 350kHz with Hall (X1)
Wiring of a ComCoder as a feedback unit (primary, ð p.76). For the commutation hall
sensors are used and for the resolution an incremental encoder.
The thermal control in the motor is connected to X1 and evaluated there. With our Com
-
Coder cable all signals are connected correctly. If cable lengths of more than 25m are
planned, please consult our customer service. With separate feedback devices (Encoder
and Hall are two devices) the wiring must be done similar to chapter 7.12.9, but the ampli-
fier's pinout is identical to the wiring diagram shown below.
Frequency limit (A,B): 350 kHz
Type FBTYPE EXTPOS GEARMODE
AquadB 5V + Hall 15 - -
The pin assignment shown on the encoder side relates to the Kollmorgen motors.
88 S701x2-S724x2 Instructions Manual
Electrical installation 07/2014 Kollmorgen
S700
SubD15
round, 17 pin

Table of Contents

Other manuals for Kollmorgen S700

Related product manuals