EasyManua.ls Logo

Rockwell Automation Allen-Bradley Kinetix 5500 - Ring Topology

Rockwell Automation Allen-Bradley Kinetix 5500
260 pages
Print Icon
To Next Page IconTo Next Page
To Next Page IconTo Next Page
To Previous Page IconTo Previous Page
To Previous Page IconTo Previous Page
Loading...
22 Rockwell Automation Publication 2198-UM001M-EN-P - November 2022
Chapter 1 Start
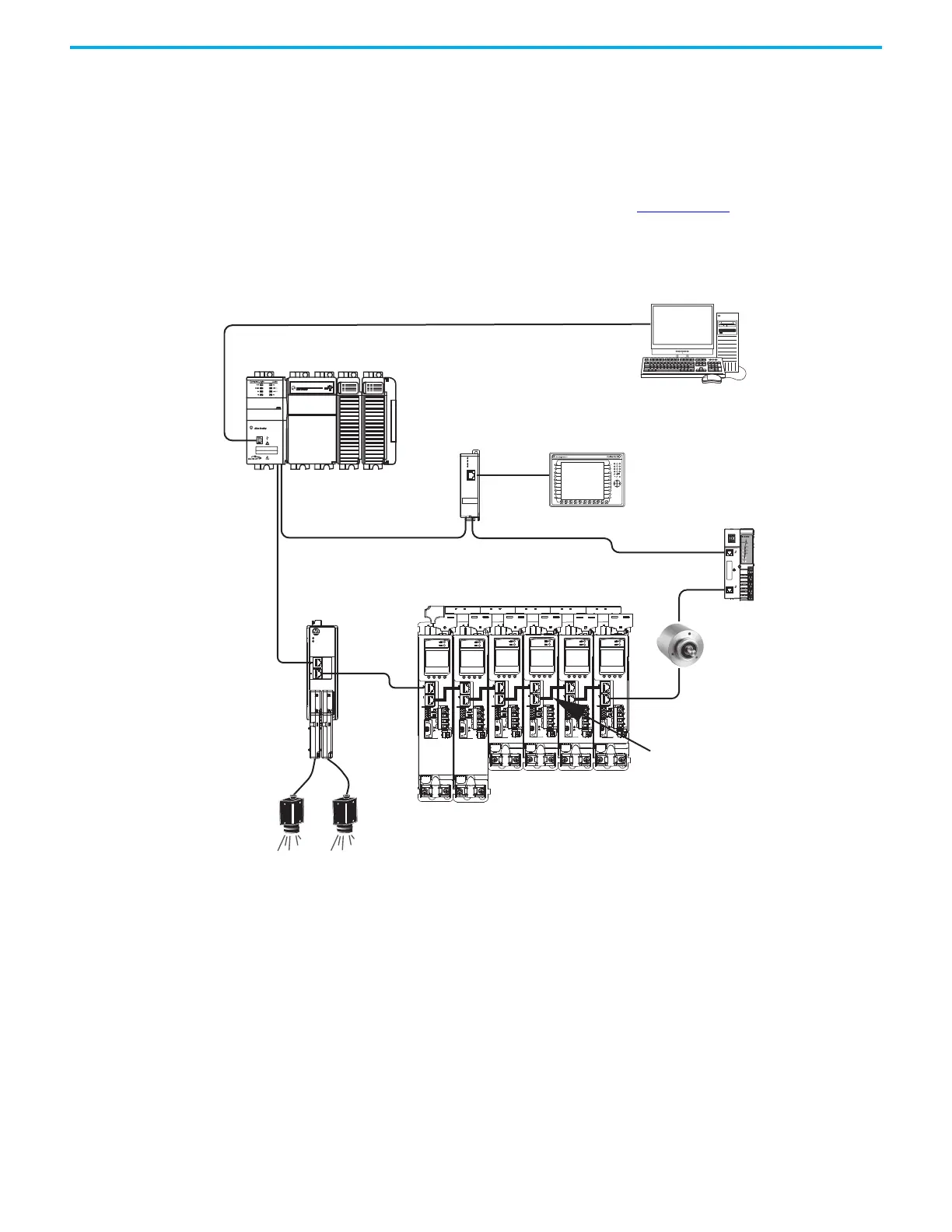
Ring Topology
In this example, the devices are connected by using ring topology. If only one
device in the ring is disconnected, the rest of the devices continue to
communicate. For ring topology to work correctly, a Device Level Ring (DLR)
supervisor is required (for example, the Bulletin 1783 ETAP device). DLR is an
ODVA standard. For more information, see the EtherNet/IP Embedded Switch
Technology Application Guide, publication ENET-AP005
.
Devices without dual ports, for example the display terminal, require a
1783-ETAP module to complete the network ring.
Figure 8 - Kinetix 5500 Ring Communication Installation
2198-ABQE
Encoder Output Module
1734-AENTR POINT I/O
EtherNet/IP Adapter
CompactLogix Controller Programming Network
1783-ETAP
Module
1585J-M8CBJM-OM15
0.15 m (6 in.) Ethernet cable
for drive-to-drive connections.
PanelView Plus
Display Terminal
Kinetix 5500 Servo Drive System
CompactLogix 5370 Controller
Studio 5000 Logix Designer
Application
1585J-M8CBJM-x Ethernet
(shielded) Cable
842E-CM Integrated
Motion Encoder

Table of Contents

Other manuals for Rockwell Automation Allen-Bradley Kinetix 5500

Related product manuals