EasyManua.ls Logo

Rockwell Automation Allen-Bradley Kinetix 5500 - Page 95

Rockwell Automation Allen-Bradley Kinetix 5500
260 pages
Print Icon
To Next Page IconTo Next Page
To Next Page IconTo Next Page
To Previous Page IconTo Previous Page
To Previous Page IconTo Previous Page
Loading...
Rockwell Automation Publication 2198-UM001M-EN-P - November 2022 95
Chapter 5 Connect the Kinetix 5500 Drive System
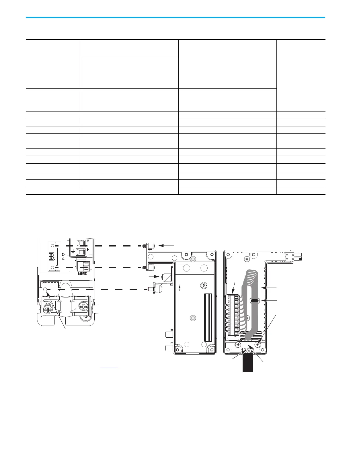
A mounting bracket is included with the 2198-H2DCK converter kit to secure
the kit to the drive. Install the mounting bracket in the mounting position
specific to the frame size of your drive.
Figure 58 - Wire the 2198-H2DCK Feedback Converter Kit
Table 53 - 2090-CFBM7DF-CEAxxx Feedback Cables
Rotary Motors
MPL-B15xxx…MPL-B2xxx-V/Ex4/7xAA
MPL-B3xxx…MPL-B6xxx-M/Sx7xAA
MPL-A5xxx-M/Sx7xAA
MPL-A15xxx…MPL-A2xxx-V/Ex4/7xAA
MPL-A3xxx-M/Sx7xAA
MPL-A4xxx-M/Sx7xAA
MPL-A45xxx-M/Sx7xAA
MPM-A115xxx…MPM-A130xxx-M/S
MPF/MPS-A3xx-M/S
MPF/MPS-A4xx-M/S
MPF/MPS-A45xx-M/S
MPS-A5xxx-M/S
2198-H2DCK
Converter Kit Pin
MPM-A165xxx…MPM-A215xxx
MPM-Bxxxxx-M/S
MPF-Bxxx-M/S
MPF-A5xxx-M/S
MPS-Bxxx-M/S
Linear Actuators
MPAS-Bxxxxx-VxxSxA
MPAR-Bxxxx,
MPAI-Bxxxx
LDAT-Sxxxxxx-xDx
MPAS-Axxxxx-VxxSxA
MPAR-Axxxx, MPAI-Axxxx
1Sin+Sin+1
2Sin-Sin-2
3 Cos+ Cos+ 3
4 Cos- Cos- 4
5 Data+ Data+ 5
6 Data- Data- 10
9Reserved EPWR_5V 14
10 ECOM ECOM
6
(1)
11 EPWR_9V Reserved 7
12 ECOM ECOM 6
13 TS TS 11
(1) The ECOM and TS- connections are tied together and connect to the cable shield.
14
11
10
7
6
5
4
3
2
1
2
1
Shield Clamp
Clamp Screws (2)
Service Loops
Tie Wrap for Stress Relief
and Wire Management
Mounting Screws (2)
Mounting Bracket
Frame 2 Mounting Position
(catalog numbers 2198-H015-ERSx,
2198-H025-ERS, and 2198-H040-ERSx)
Frame 1 Mounting Position
Frame 3 Mounting Position
(catalog number 2198-H070-ERSx)
(catalog numbers 2198-H003
ERSx and 2198-H008-ERSx)
See Hiperface to DSL Feedback Converter Kit Installation Instructions,
publication 2198-IN006
, for converter kit specifications.
10-pin
Connector
Converter Kit Mounting Hole with
Protective Cover Removed
(frame 1 drive example shown)
1. Place the exposed cable
shield in the channel.
2. Place the shield clamp over
the exposed shield.
3. Tighten screws, torque
0.3 N•m (2.6 lb•in).
Exposed Shield Aligned
in the Cable Channel

Table of Contents

Other manuals for Rockwell Automation Allen-Bradley Kinetix 5500

Related product manuals