EasyManua.ls Logo

YASKAWA MP3000 Series - DIN Rail Mounting

YASKAWA MP3000 Series
326 pages
Print Icon
To Next Page IconTo Next Page
To Next Page IconTo Next Page
To Previous Page IconTo Previous Page
To Previous Page IconTo Previous Page
Loading...
2.1 MP3200 Installation
2.1.2 DIN Rail Mounting
2-7
2
Installation and Connections
2.1.2
DIN Rail Mounting
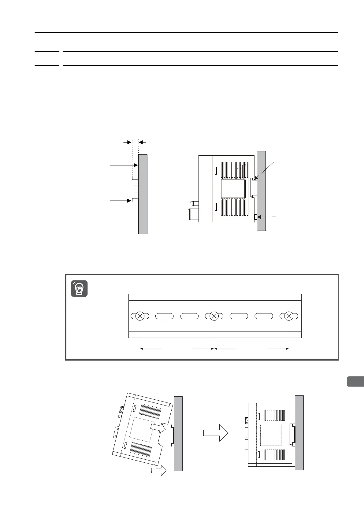
This section describes how to install the Controller by mounting it on DIN rail.
DIN Rail Types and the Spacer
Various types of DIN rails are available with a 7-mm to 15-mm gap from the mounting surface
as shown on the left in the following figure. If you mount an MP3200 using a DIN rail with a 10-
mm or larger gap, install a spacer on the back of and near the bottom of the MP3200, as
shown on the right side of the following figure, to protect it from vibration and shock.
Procedure for Mounting to a DIN Rail
1.
Attach the DIN rail to the control panel and secure it in place.
2.
Hook the MP3200 to the top of the DIN rail (a in the figure), and then press the Controller
toward the mounting surface (b in the figure) to secure it in place.
Securing the DIN Rail
Secure the DIN rail at a pitch of 150 mm or less, as shown in the following figure.
DIN rail
Installation plate
Distance from mounting surface: 7.5 to 15 mm
Spacer
DIN rail
DIN Rail with a 10-mm Gap
Important
150 mm max.
150 mm max.
C
D

Table of Contents

Other manuals for YASKAWA MP3000 Series

Related product manuals