EasyManua.ls Logo

YASKAWA MP3000 Series - Page 68

YASKAWA MP3000 Series
326 pages
Print Icon
To Next Page IconTo Next Page
To Next Page IconTo Next Page
To Previous Page IconTo Previous Page
To Previous Page IconTo Previous Page
Loading...
2.3 Connecting Devices
2.3.1 Part Names and Functions
2-40
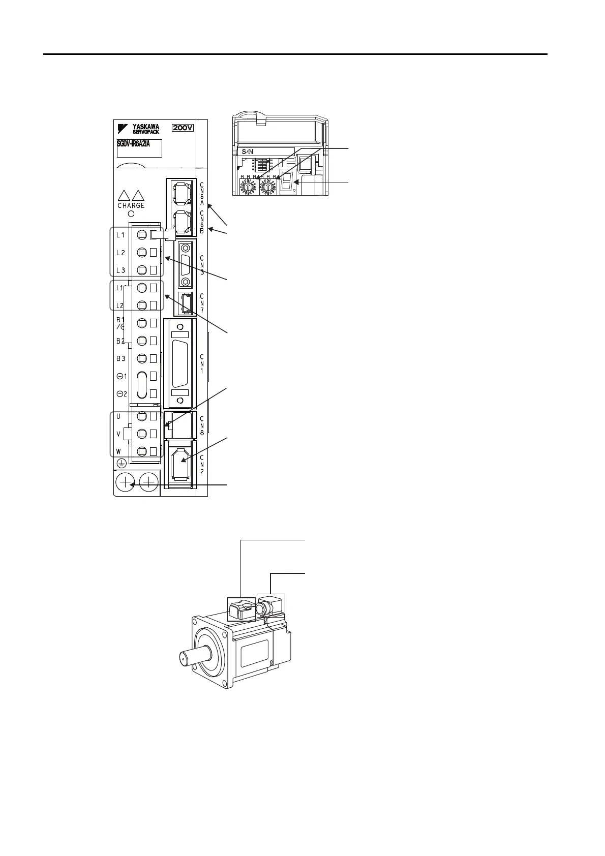
Reference-type SERVOPACK with MECHATROLINK-III Communications
SGMAV-series Servomotor
Note: The ground terminal helps prevent electric shock. Always connect it.
Ground Terminal
This connector is used to connect the encoder built into the Servomotor.
Encoder Connector (CN2)
These terminals are used to connect the main circuit cable
(power line) to the Servomotor.
Servomotor Terminals (U, V, W)
These terminals input the control power supply.
Control Power Supply Terminals (L1C, L2C or 24 V, 0 V)
These terminals input the main circuit power supply.
Main Circuit Power Supply Terminals (L1, L2, L3)
These connectors are used to connect devices that are compatible
with the MECHATROLINK-III system.
MECHATROLINK-III Communications Connectors (CN6A, CN6B)
This seven-segment display indicates the
status of the Servo.
Panel Display
These switches are used to set the
MECHATROLINK station address.
Rotary switches (S1, S2)
SERVOPACK with the Front Cover Open
This connector is used to connect
the encoder cable.
Encoder Cable Connector
This connector is used to
connect the motor cable.
Motor Cable Connector

Table of Contents

Other manuals for YASKAWA MP3000 Series

Related product manuals