EasyManua.ls Logo

Allen-Bradley 20F - Page 119

Allen-Bradley 20F
320 pages
Print Icon
To Next Page IconTo Next Page
To Next Page IconTo Next Page
To Previous Page IconTo Previous Page
To Previous Page IconTo Previous Page
Loading...
Rockwell Automation Publication 750-IN001P-EN-P - April 2017 119
Lift and Mount the Drive Chapter 3
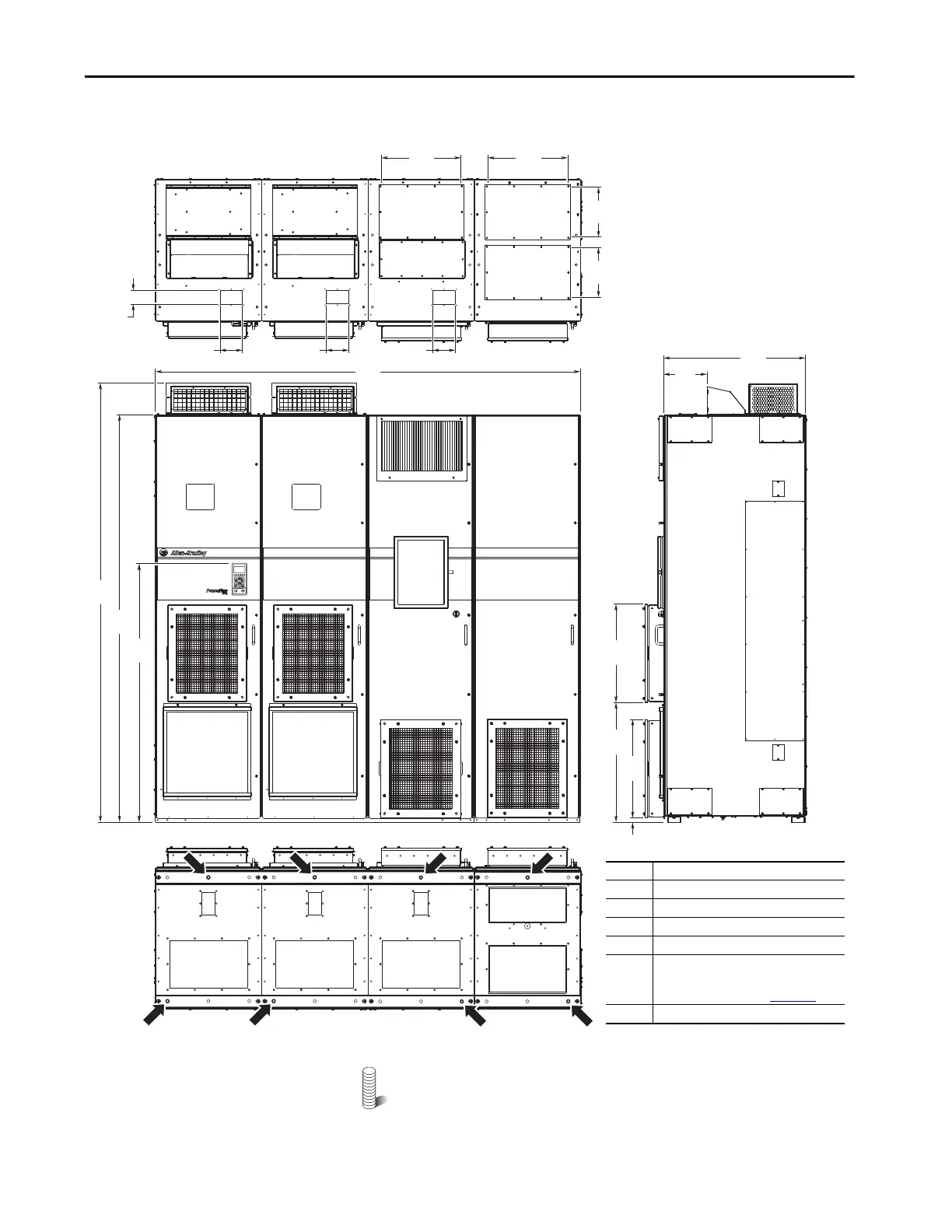
Figure 83 - IP54, NEMA 12, MCC Style Cabinet, Floor Mount Frame 9 (Enclosure Codes K and Y)
IP54, UL Type 12, MCC Style Cabinet, Floor Mount Frame 9 (Enclosure Code J)
M12 (1/2 in.) Property Class 8.8 anchor hardware is recommended
to fasten the drive cabinet through its internal mounting angle to the
foundation. Anchor bolts can be pre-located and embedded in the
foundation before instillation.
2477
(97.5)
2300
(90.6)
1464
(57.6)
800
(31.5)
244
(9.6)
675
(26.6)
556
(21.9)
24
(1.0)
556
(21.9)
310
(12.2)
310
(12.2)
480
(18.9)
480
(18.9)
78
(3.1)
1
1
1
2
2
2
3
4
6
5
127
(5.0)
127
(5.0)
127
(5.0)
2400
(94.5)
Top
Bottom
No. Description
1Power wiring conduit plates.
2 Control wiring conduit plates.
3Optional HIM.
4 Option bay disconnect switch access door.
5 Interlock override switch.
For instructions and precautions see the
Hardware Service Manual, 750-TG001
.
6 Recommended eight-hole anchoring.
800 mm (31.5 in.) Deep Drive with Cabinet
Options Bay and Wiring Bay

Table of Contents

Other manuals for Allen-Bradley 20F

Related product manuals