EasyManua.ls Logo

Brother MFC-J6520DW - Page 348

Brother MFC-J6520DW
365 pages
Print Icon
To Next Page IconTo Next Page
To Next Page IconTo Next Page
To Previous Page IconTo Previous Page
To Previous Page IconTo Previous Page
Loading...
6-3
Confidential
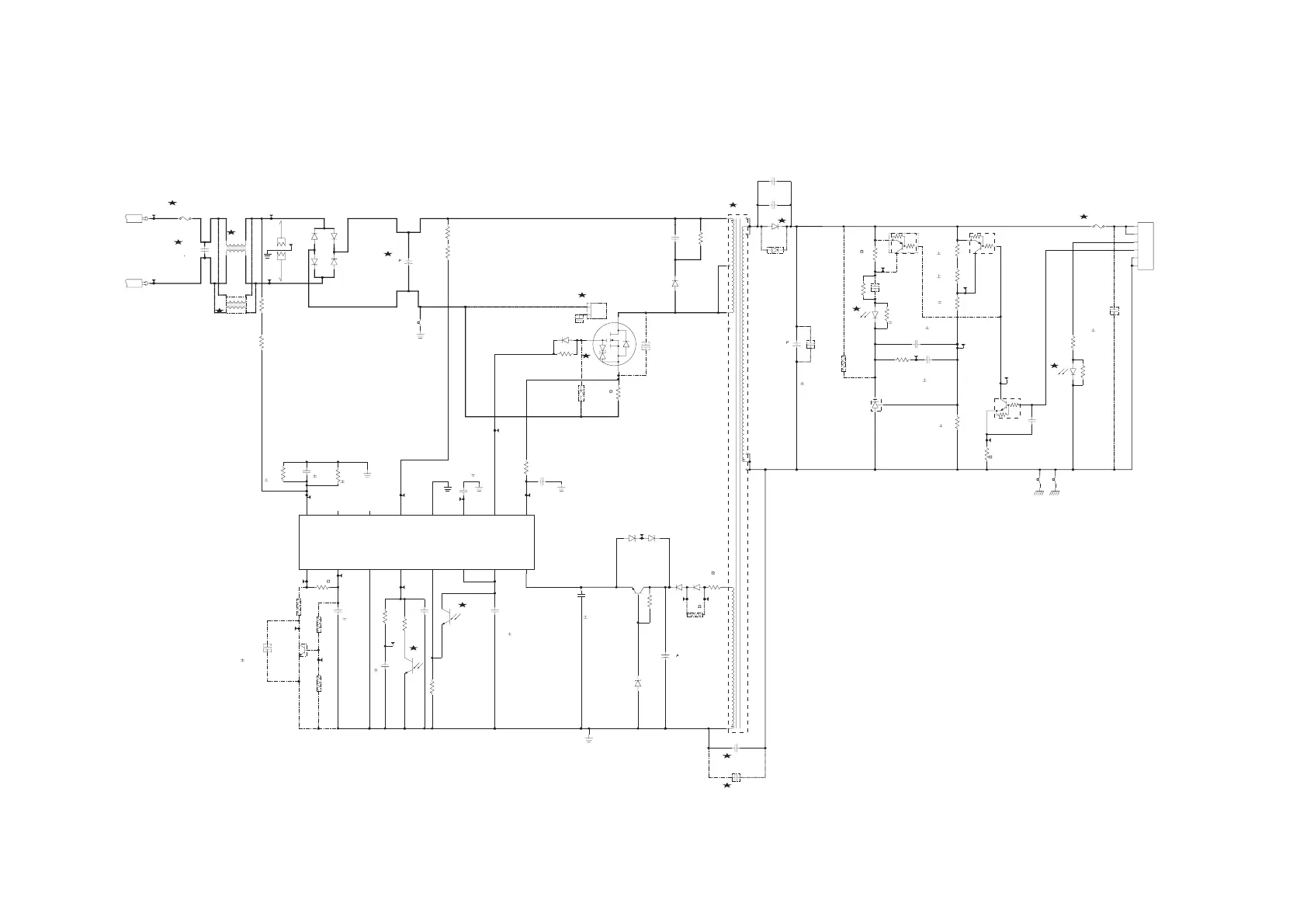
Power supply PCB, 100 V series
11
10
NC
NC
+
3
OPEN
+
AC CORD
AC CORD
+
LIVE
LIVE_L
LIVE_L
NEUTRAL_L
SEC+
PRI+
PRI+
NEUTRAL
LIVE_F
PRI-
CN101
B6B-PH-K-S(LF)(SN)
1
2
3
4
5
6
R112
1k
1/4W
R100
1k
1/10W
Q103
DTC114YUA
C
B
E
Q100
DTA114YUA
C
B
E
Q101
DTA114YUA
C
B
E
D3
1N4005
D2
1N4005
D4
1N4005
D1
1N4005
C12
102
1KVDC
D6
S1J
420V
1A
R7
0.15
2W
D5
RF081L2S
200V
1A
R1
100
1/4W
C4
101
50VDC
R17
10
1/4W
D7
DA2JF2300
R16
22k
1/4W
Q2
2SD1857L-R-T92
C
B
E
R2
2.4k
1/8W
R3
2.4k
1/8W
R4
3.3M
1/8W
R18
30k
1/8W
R20
10
1/10W
R9
15k
1/10W
C3
105
10VDC
10%(B)
C2
103
50VDC
10%(B)
R6
240k
1/10W
5%(J)
C14
105
10VDC
10%(B)
C102
47P
1KVDC
C103
105
25VDC
10%(B)
C6
105
10VDC
10%(B)
C107
47P
1KVDC
R14
100k
2W
C104
103
50VDC
10%(B)
R107
100k
1/10W
R103
4.7k
1/4W
R104
0
1/10W
R108
20k
1/8W
1%(F)
R106
30k
1/10W
1%(F)
TP4
TP5
TP6
TP100
TP103
TP104
TP101
TP105
C9
105
25VDC
10%(B)
TP2
TP3
FG1
TP1
C7
105
25VDC
10%(B)
C10
102
1KVDC
VCCGND
VCCGND
DNGCCVDNGCCV
R102
1.3k
1/10W
5%(J)
FG101 FG102
ST101
ST100
U1
LS
8
VDD2
13
GND12
12
OFF
14
VIN
9
SO
15
Vcc
1
VDD1
7
FB
16
GND3
3
OUT
4
IS
6
VGD
5
CL
2
VCCGND
C13
47
100ME47AX
HT1
HEAT SHINK BHS13 LVPS Q1
1
2
PT1
470
1/8W
Q3
2SC4081
C
B
E
VCCGND
VCCGND
C105
103
50VDC
10%(B)
C108
103
50VDC
10%(B)
D100
CMH01
200
1A
C100
103
25VDC
ST1
TP8
TP9
TP10
TP12
R8
0
1/10W
R11
1.8k
1/4W
R15
2.2k
1/8W
C16
102
D8
DA2JF2300
R22
0
1/10W
TP13
R111
8.2k
1/10W
1%(F)
Q104
MM1431FNREA
K
REF
R118
10k
1/10W
C8
104
16VDC
10%(B)
T1
SRW2625EG-219V016
2
1
4
5
6
7
8
9
10
11
12
TP18
TP14
TP16
TP15
TP17
TP19
R10
82k
1/10W
R119
0
1/8W
TP108
Q1
STP9NK50ZFP
S
G
D
C101
270
50V
R105
43k
1/10W
1%(F)
C109
102
50VDC
C18
332
TP24
TP25
R5
3.3M
1/8W
R19
240k
1/10W
5%(J)
ZD7
DZ2W02000
CN1
CN2
L2
1R0223TLN25(A)(T)
3
4
2
1
D101
SBYV28-200-E3/54
200V
1A
PH2
LTV-816-C
A
K
PH1
LTV-816-C
A
K
PH2
LTV-816-C
C
E
PH1
LTV-816-C
C
E
ZD2
DZ2S20000
25mW
ZD4
DZ2S36000
25mW
ZD5
DZ2S36000
25mW
C17
332
F101
SCT (250V3.15A)
F1
50T(P)040H
C1
012
RE104-C3.5
200V
250V
C5
220
EKMQ201E**221ML25S
L1
1R0A163TLN25T
3
4
2
1

Table of Contents

Other manuals for Brother MFC-J6520DW

Related product manuals