EasyManua.ls Logo

Cisco ONS 15454 - Mounting a Single Node; Mounting Multiple Nodes; ONS 15454 ANSI Bay Assembly

Cisco ONS 15454
516 pages
To Next Page IconTo Next Page
To Next Page IconTo Next Page
To Previous Page IconTo Previous Page
To Previous Page IconTo Previous Page
Loading...
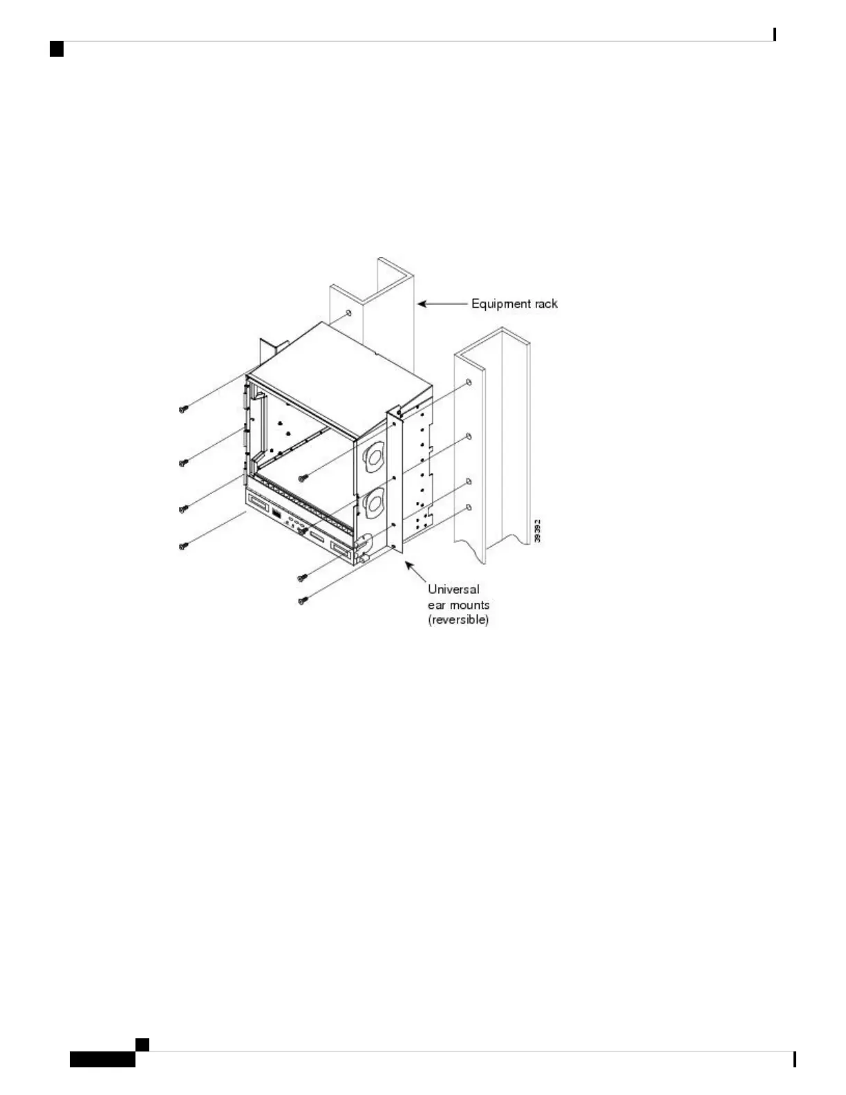
Mounting a Single Node
Mounting the ONS 15454 ANSI shelf in a rack requires a minimum of 18.5 inches (469.9 mm) of vertical
rack space and one additional inch (25.4 mm) for air flow. To ensure the mounting is secure, use two to four
#12-24 mounting screws for each side of the shelf. The following figure shows the rack mounting position
for the ONS 15454 ANSI shelf.
Figure 8: Mounting an ONS 15454 ANSI Shelf in a Rack
Two people should install the shelf; however, one person can install it using the temporary set screws included.
The shelf should be empty for easier lifting. The front door can also be removed to lighten the shelf.
Mounting Multiple Nodes
Most standard (Telcordia GR-63-CORE, 19-inch [482.6-mm] or 23-inch [584.2-mm]) seven-foot (2.133-m)
racks can hold four ONS 15454 ANSI shelves and a fuse and alarm panel. However, unequal flange racks are
limited to three ONS 15454 ANSI shelves and a fuse and alarm panel, or four ONS 15454 ANSI shelves using
a fuse and alarm panel from an adjacent rack.
If you are using the external (bottom) brackets to install the fan-tray air filter, you can install three shelf
assemblies in a standard seven-foot (2.133-m) rack. If you are not using the external (bottom) brackets, you
can install four shelf assemblies in a rack. The advantage of using the bottom brackets is that you can replace
the filter without removing the fan-tray.
ONS 15454 ANSI Bay Assembly
The Cisco ONS 15454 ANSI bay assembly simplifies ordering and installing the ONS 15454 ANSI shelf
because it allows you to order shelf assemblies preinstalled in a seven-foot (2,133 mm) rack. The bay assembly
Cisco ONS 15454 Hardware Installation Guide
26
Installing the ONS 15454 M12 (ANSI and ETSI) Shelf
Mounting a Single Node

Table of Contents

Other manuals for Cisco ONS 15454

Related product manuals