EasyManua.ls Logo

Cisco ONS 15454 - Page 74

Cisco ONS 15454
516 pages
To Next Page IconTo Next Page
To Next Page IconTo Next Page
To Previous Page IconTo Previous Page
To Previous Page IconTo Previous Page
Loading...
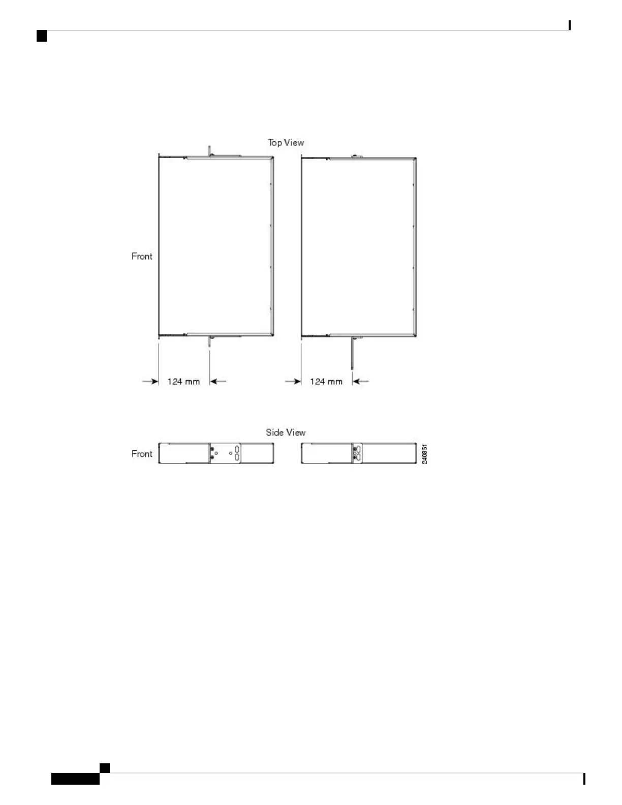
Step 7 The bracket mounting holes will align with the forward-most mounting holes on the air ramp. When aligned
properly the mounting flange will be 124 mm from the front edge of the air ramp.
Figure 18: Positioning 19 or 23 Reversible Brackets on ONS 15454 ANSI with STD Door and Spool
Step 8 To install the 19-inch and 23-inch brackets in an ONS 15454 ANSI deep door, remove the screws that attach
the mounting bracket to the side of the shelf.
Step 9 Align the mounting bracket screw holes against the shelf screw holes according to the following figure.
Step 10 The bracket mounting holes will align with the forward-most mounting holes on the air ramp. When aligned
properly the mounting flange will be 80 mm from the front edge of the air ramp.
Cisco ONS 15454 Hardware Installation Guide
44
Installing the ONS 15454 M12 (ANSI and ETSI) Shelf
DLP-G8 Install the Air Ramp

Table of Contents

Other manuals for Cisco ONS 15454

Related product manuals