EasyManua.ls Logo

Fimer PVS980-58 - Type Designation Key and Labels

Fimer PVS980-58
160 pages
Print Icon
To Next Page IconTo Next Page
To Next Page IconTo Next Page
To Previous Page IconTo Previous Page
To Previous Page IconTo Previous Page
Loading...
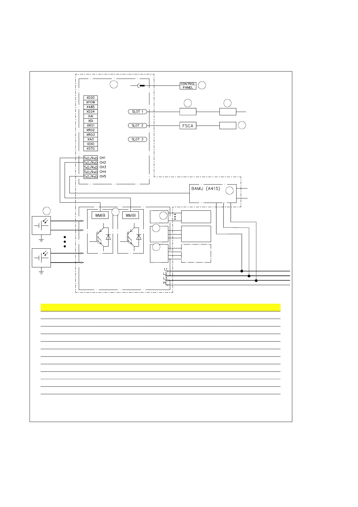
40 Operation principle and hardware description
Overview of power and control connections
ETHERNET
SWITCH
24 VDC
BCU-12
Customer I/O
X20
1~ Aux. power
X13
3~ Out for ext.
transformer
X12
L
N
PE
L1
L2
L3
PE
DC+
DC+
DC-
3 x U
FIELDBUS
ADAPTER
DC-
DC+
DC-
,2
No. Description
1. Control unit (BCU-12)
2. Control panel (ACS-AP-I)
3. Optional fieldbus adapter
4. Optional Ethernet switch
5. Internal I/O connected through a Modbus adapter (FSCA-01)
6. Solar array
7. Power modules
8. Customer I/O control connection
9. 1-phase auxiliary power output
10. 3-phase power output for external auxiliary transformer
11. BAMU-11. Auxiliary measuring unit: DC voltage, grid voltage measurement for BCU-12.
1
2
3
5
8
6
7
9
10
11
4

Table of Contents

Related product manuals