EasyManua.ls Logo

Fimer PVS980-58 - Earthing and Cable Routing

Fimer PVS980-58
160 pages
Print Icon
To Next Page IconTo Next Page
To Next Page IconTo Next Page
To Previous Page IconTo Previous Page
To Previous Page IconTo Previous Page
Loading...
Mechanical installation 53
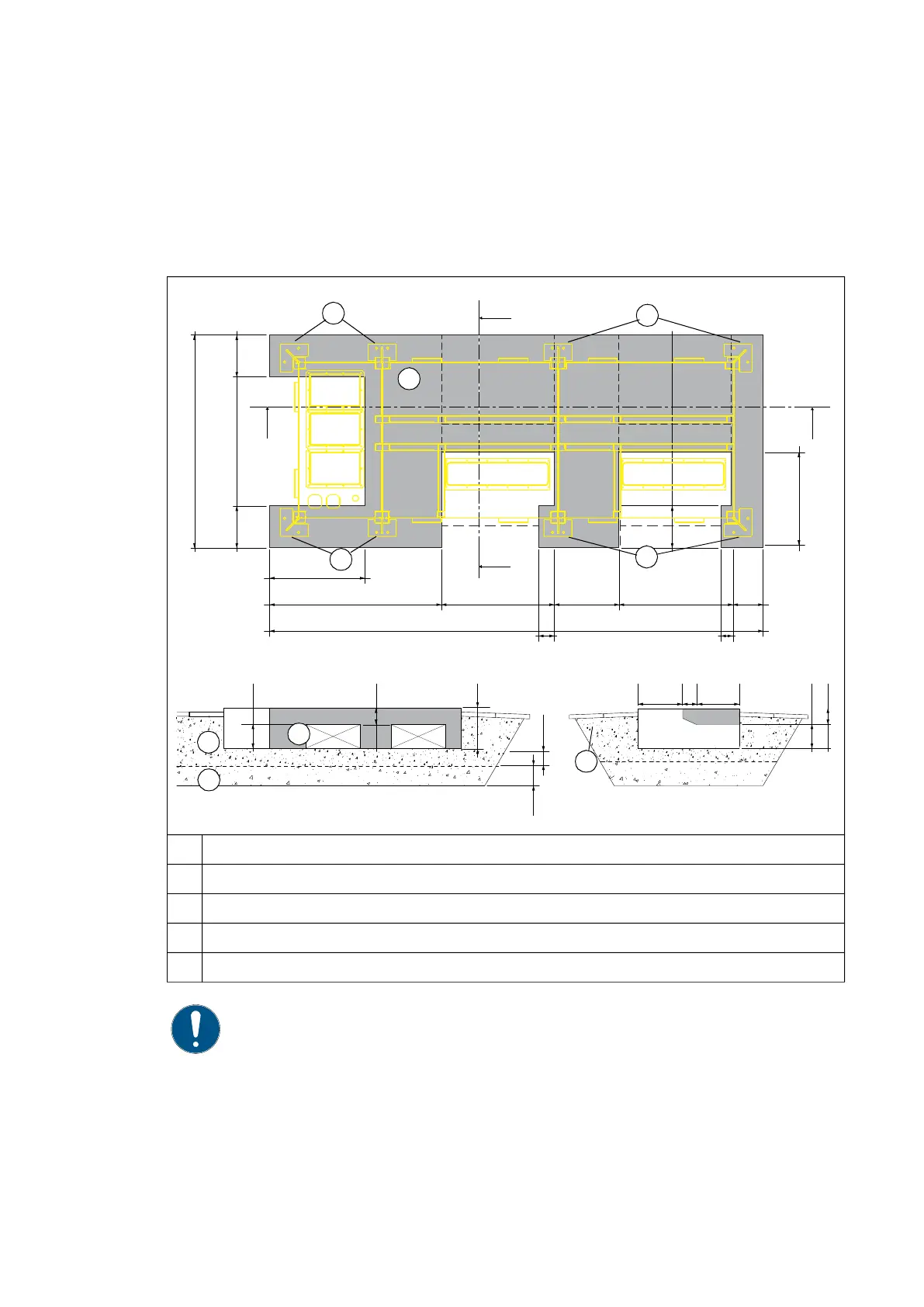
Preparation of the ground
1. Make a hole for the foundation and cabling.
2. Use geotextile to prevent mixing of the installation gravel with the surrounding soil.
3. Put coarse gravel at the bottom of the hole and fine gravel at the top.
4. Compress the gravel and soil below the foundation.
Note: The above foundation diagram is an example, not a requirement. Obey
local rules and conditions.
1. Area of the foundation under the inverter
2. Compressed fine gravel
3. Compressed coarse gravel
4. Service area (concrete tiled)
5. Cabinet fixing points
681
680
1519
300300 919
300
3521
1229 800 460 800
200
150
200
250
250
300
AA
B
A - A B - B
B
232
70110
680 639
375
375
1
1
2
3
4
5
5
5
5

Table of Contents

Related product manuals