EasyManua.ls Logo

Fimer PVS980-58 - Auxiliary Power and I;O Connections

Fimer PVS980-58
160 pages
Print Icon
To Next Page IconTo Next Page
To Next Page IconTo Next Page
To Previous Page IconTo Previous Page
To Previous Page IconTo Previous Page
Loading...
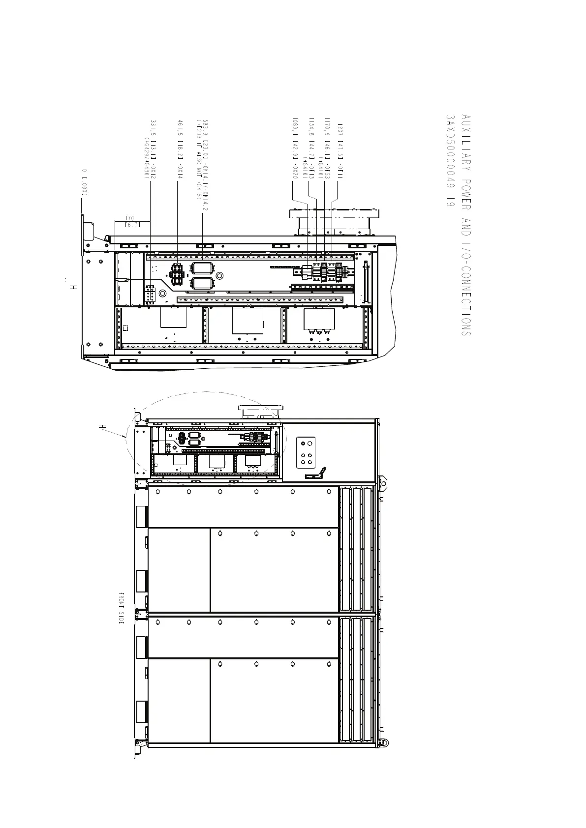
134 Dimension drawings
Auxiliary power and I/O connections

Table of Contents

Related product manuals