EasyManua.ls Logo

Fimer PVS980-58 - Cable Lead-Through Drawings

Fimer PVS980-58
160 pages
Print Icon
To Next Page IconTo Next Page
To Next Page IconTo Next Page
To Previous Page IconTo Previous Page
To Previous Page IconTo Previous Page
Loading...
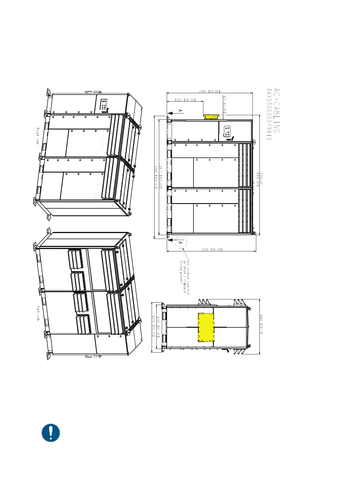
118 Dimension drawings
Cabinet dimensions (AC cabling)
Note: The highlighted AC busbar connection is available as option
G317.

Table of Contents

Related product manuals