EasyManua.ls Logo

Fimer PVS980-58 - DC Cabling (16 Inputs, +16 H382)

Fimer PVS980-58
160 pages
Print Icon
To Next Page IconTo Next Page
To Next Page IconTo Next Page
To Previous Page IconTo Previous Page
To Previous Page IconTo Previous Page
Loading...
Dimension drawings 131
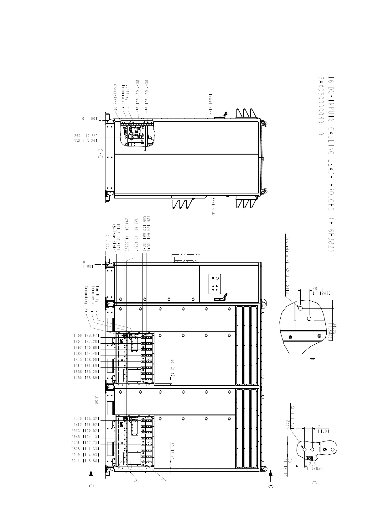
DC cabling (16 inputs, +16H382)

Table of Contents

Related product manuals