EasyManua.ls Logo

Fimer PVS980-58 - (+G415+G410)

Fimer PVS980-58
160 pages
Print Icon
To Next Page IconTo Next Page
To Next Page IconTo Next Page
To Previous Page IconTo Previous Page
To Previous Page IconTo Previous Page
Loading...
Operation principle and hardware description 39
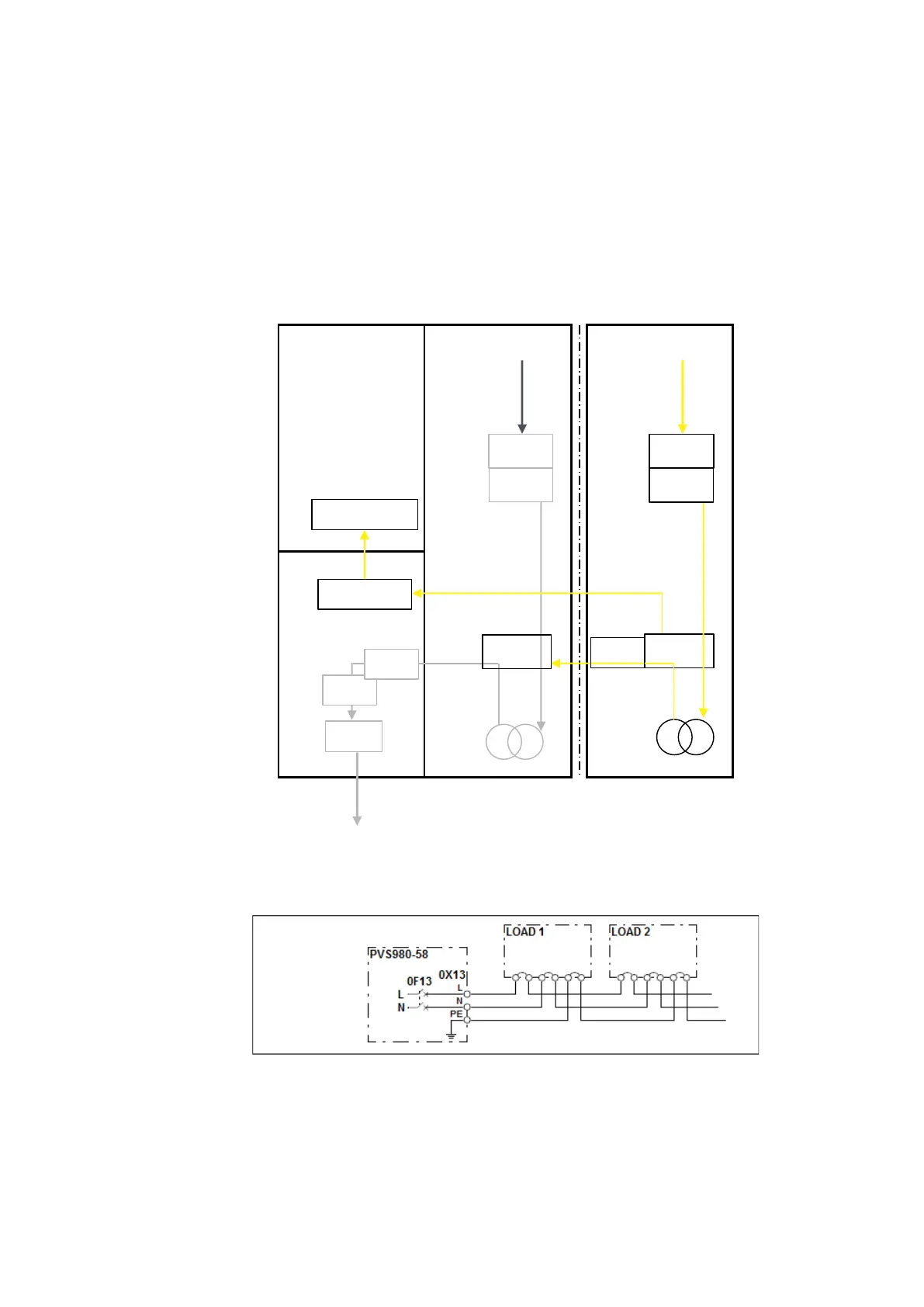
Internal auxiliary voltage supply with 1-phase 2 kVA customer
auxiliary power output (+G415+G410)
Option +G410, in addition to option +G415, provides an internal auxiliary voltage supply
for internal power consumption and an additional 2 kVA 1-phase output from terminal
block 0X13 for fixed installations. As standard, the 1-phase output is 230 V AC, and with
options +G396 and +G397, you can select a 100 V AC or 115 V AC output. Note that the
selected output voltage level applies to both the service socket outlet and the fixed 1-
phase output.
Connecting the external load (+G410):
The maximum permitted load that can be connected to the output is 2 kVA.
+CS
+ACC
+1AC +2AC
4 kVA
2X10
0X13
Outlet 0X11
+G410
2Q10
4 kVA
1Q10
(+G39x)
+G39x
2F52
0F11+0F51
1X10
2Q11
1Q11
2T10
1T10
0F13
0F53

Table of Contents

Related product manuals