EasyManua.ls Logo

IAI RoboNet - Page 27

IAI RoboNet
398 pages
Print Icon
To Next Page IconTo Next Page
To Next Page IconTo Next Page
To Previous Page IconTo Previous Page
To Previous Page IconTo Previous Page
Loading...
7
Part 1 Specification
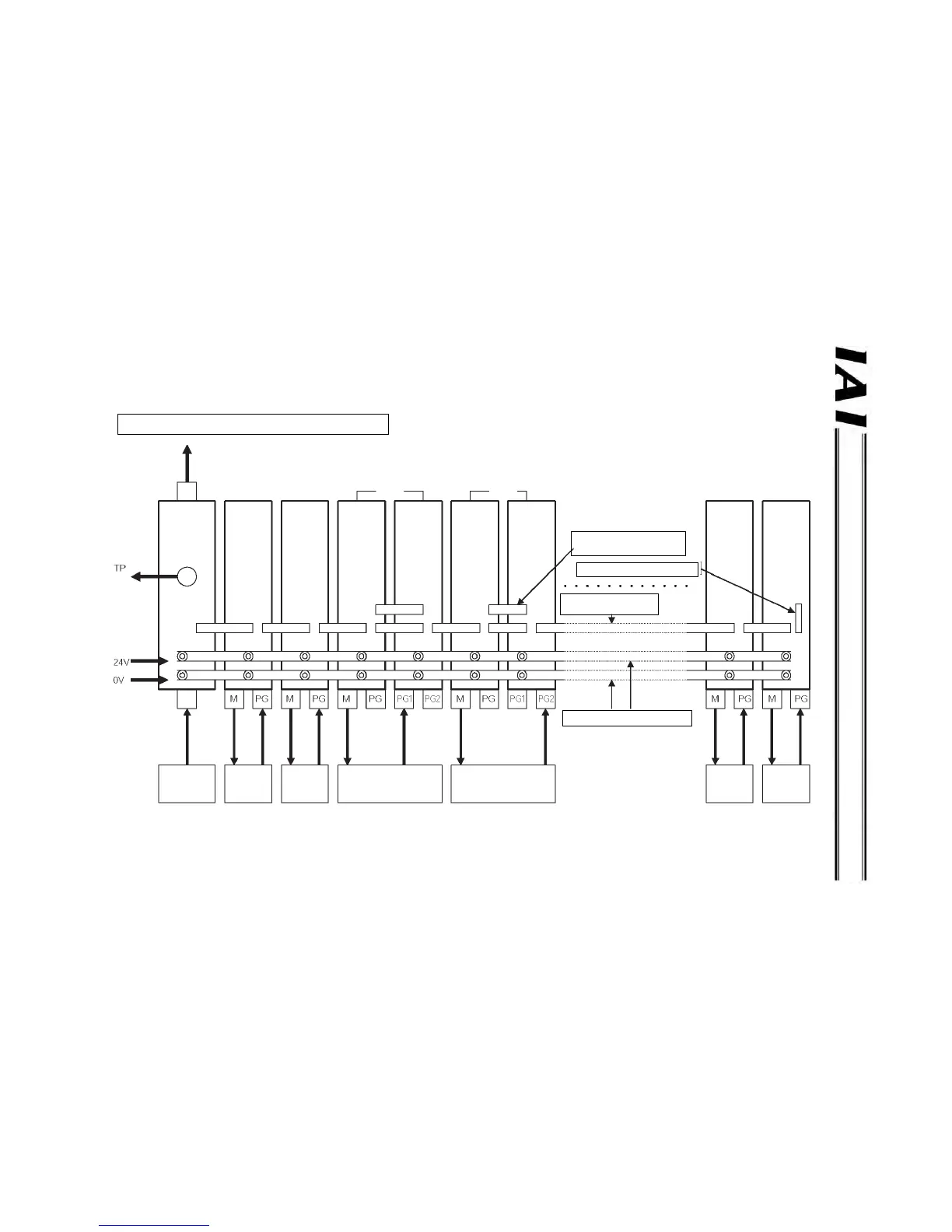
Field network (DeviceNet, CC-Link, PROFIBUS) RS485 SIO
Axis 0 Axis 1 Axis 2 Axis 3 Axis 14 Axis 15
GateWay
R unit
RACON
unit
RPCON
unit
RAON
unit
Simple
absolute
R unit
RPCON
unit
Simple
absolute
R unit
Simple absolute connection
circuit board
Terminal resistor circuit board
ROBONET communication
connection circuit board
Power-supply connection plates
RACON
unit
RPCON
unit
Emergency
stop circuit
RCA
, RCL
actuators
RCP
actuator
RCA, RCL
actuators
RCP
actuator
RCA
, RCL
actuators
RCP
actuator
ROBONET Configuration (1) (Basic)

Table of Contents

Related product manuals