EasyManua.ls Logo

Leviton EZ-MAX - Page 176

Leviton EZ-MAX
196 pages
Print Icon
To Next Page IconTo Next Page
To Next Page IconTo Next Page
To Previous Page IconTo Previous Page
To Previous Page IconTo Previous Page
Loading...
Page 166
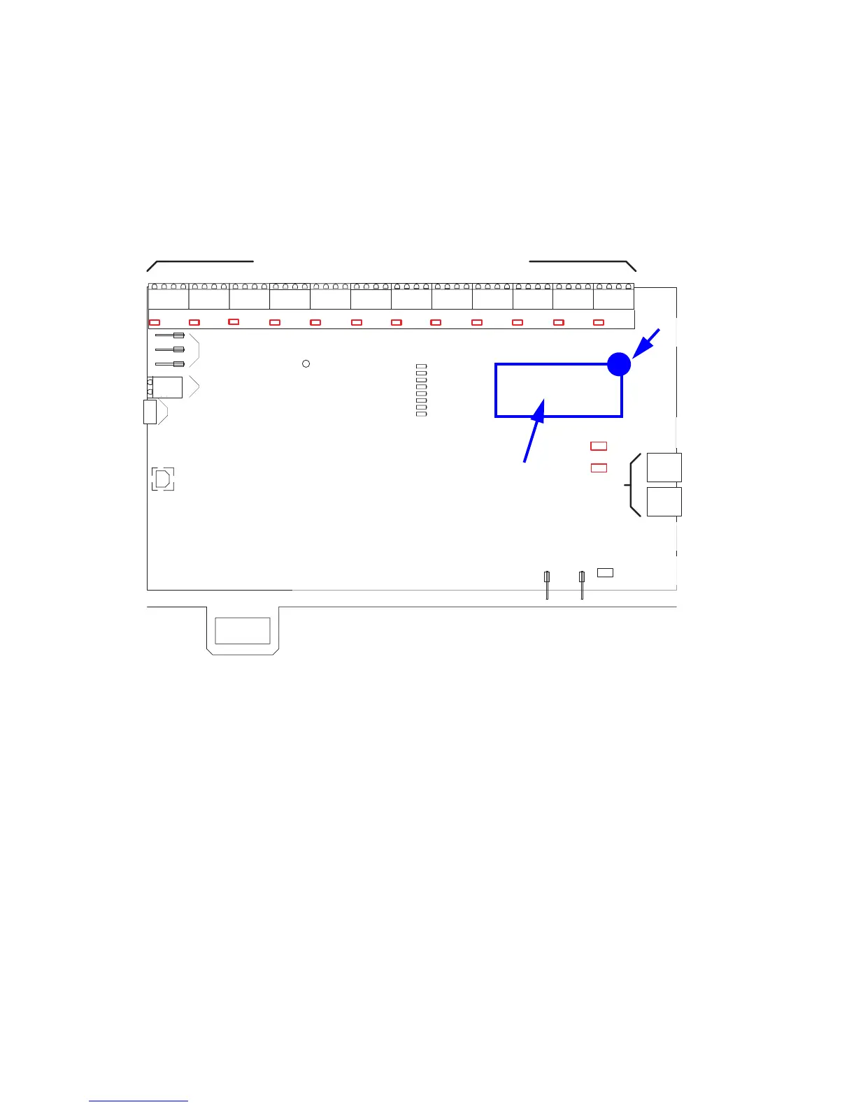
Figure 4: Modem Module Installation, 24 & 48 relay cabinets
IN
COMMON
NC
NO
J15
Switch Inputs and DMX Connector-
Wire Range #14 - #24 AWG
Torque2 LB-IN
ALL OFF NORMAL ALL ON
JP11
AC1
AC2
18 VAC IN
TERM
1
TB15
COM
Luma-Net Connector
Wire Range #12 - #24 AWG
Torque 5 LB-IN
ETHERNET/MODEM
ANALOG/SWITCH INPUT/OUTPUTS TB 1-12*
}
ALL RIGHTS RESERVED WORLDWIDE
ANALOG/SWITCH I/O*
(OPTIONAL)
USB TYPE B
J6
SWITCH BOARD
EMERGENCY
INPUT - TB21 *
EMERGENCY
EMERG
COM
RELAY
SELECTOR S1 THRU S12
C 2004 LEVITON MFG. CO.
IN
+24V
OUT
IN
COM
OUT
+24V
TB1
S1
TB2
S2
COM
IN
OUT
+24V
COM
TB3
S3
+24V
TB5
IN
OUT
COM
OUT
+24V
TB4
S4
S5
COM
IN
OUT
+24V
COM
TB6
S6
JUMPER ON PULLS INPUT HIGH
5V POWER
OX-70121-00-00-02 SLAVE
OX-70121-00-00-01 MASTER
JUMPER OFF IS DEFAULT
ETH/MODEM
HEARTBEAT-C
LUMANET
EMERGENCY
CAN1
CAN2
DMX
MASTER/SLAVE
JP9 TERM
JP7 TERM
COM
OUT
S8
TB8
IN
COM
IN
OUT
+24V
TB7
S7
IN
OUT
+24V
COM
+24V
TB9
S9
OUT
S11
TB11
IN
COM
IN
OUT
+24V
TB10
S10
IN
OUT
+24V
COM
+24V
TB12
S12
1
TB20
Install Modem
with "Gold Dot"
at this location.
Location of Modem
Module Socket

Table of Contents

Related product manuals