Home
Lucent Technologies
Multiplexer
DDM-2000 OC-3
Page 1558
Lucent Technologies DDM-2000 OC-3 - Page 1558
2536 pages
Manual
Save Page as PDF
To Next Page
To Next Page
To Previous Page
To Previous Page
Loading...
363
-206-285
Circui
t
Order:
NT
P
-025
Issue
2,
Februar
y
2000
P
age
6
of
8
D
DM-
200
0
OC
-3
M
ULTIP
LEXER
DO
IT
EMS
BE
LOW
IN
ORD
ER
LISTED
.
.
.
.
.FOR
DETAILS,
G
O
TO
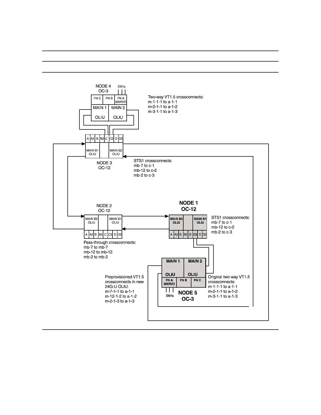
Figur
e
2
–
Basic
3-Node
OC-12
Ring
for
R
ing
U
pgrade
24/29-T
ype
1557
1559
Table of Contents
Main Page
Figures
15
Default Chapter
15
Table of Contents
15
A a SONET Overview
28
2 Applications
47
OC-3 Path Switched Interoffice Ring
90
Path Switched Ring - STS-1 Level Path Switching
91
Path Switched Ring Using
92
VT Path Switched Ring Using DDM-2000
93
Ring with OC-12 Ring Transport
95
Switching
96
OC-12 Path Switched Interoffice Ring
98
Ring Transport (STS-1/VT1.5 0X1) with Fiberreach OC-3 Rings
100
Ring Transport on OC-3 Ring Configuration
104
Fiberreach Stand-Alone OC-1 Ring
105
Fiberreach Single Homing to a Stand-Alone OC-1 Hub Host
106
Fiberreach Dual Homing to a DDM-2000 OC-3 Ring
108
Dual Ring Interworking Concepts
111
OC-3/12 to FT-2000 OC-48 Lightwave System Dual Ring Interworking
113
Ring Interworking with
114
Fiberreach Ring Dual Homing to a DDM-2000 OC-3 Ring in a Dual Wire Center Application
115
Ring Pass-Through in a Function Unit
119
Point-To-Point Topology (Folded Ring)
124
Metro Application - Copper in the Riser
125
Metro Application - Fiber in the Riser
126
Loop Carrier Interface Configuration
128
Operations Interworking Application
129
Lightwave System
129
Ring Interfaces with
130
Linear Extension from FT-2000 Lightwave System
131
Ring Interfaces with
132
Interworking of OC-1/OC-3/OC-12/OC-48 with Tellabs TITAN 5500 DCS
133
LAN/WAN Data Networking Using DS1/VT Cross-Connections
138
LAN/ATM Data Networking Using Transmultiplexer Circuit Pack
139
Data Service with ATM Switch
140
Locked (0X1) STS-3C - Broadband Services Using DDM-2000 OC-3 Multiplexer with OC-12 Optics
143
Teleprotection and SCADA Application
145
Intelligent Vehicle Highway System (IVHS) Application
147
DS1 Path Performance Monitoring for Tariff Verification
149
DS3 Transmultiplexer Application
150
3 Shelf Descriptions and Configurations
153
DDM-2000 Fiberreach Host Shelf
153
Fan Shelf
153
Shelf Descriptions and Configurations
155
OC-3 Group 4 Shelf - Front View
157
OC-3 Shelf - Rear View
157
OC-3 Plug-Ins
158
OC-3 Multiplexer Front Panel
161
OC-3 Multiplexer Circuit Pack and Software Compatibility Matrix
164
OC-3 Ring Shelf
166
OC-3 DRI Shelf
167
OC-3 Ring Shelf with an Optical Extension
168
OC-3 VT/STS Hairpin Shelf
169
DS3 Data Services in OC-3 Shelf
170
OC-3 Dual Homing Shelf
171
DDM-2000 Fiberreach Host Shelf - Enhanced Routing Topologies
174
DDM-2000 Fiberreach Host Shelf - Enhanced Routing with 26G2-U OLIU
175
OC-3/OC-12 Shelf with LAN Interface
176
OC-3/OC-12 Shelf with HDSL Interface
177
OC-3/OC-12 Shelf with Transmultiplexers
178
Fan Shelf - Fan Switches - Front Cover Removed
180
Fan Shelf Switch Settings
181
OC-3 Power Architecture
186
Circuit Pack Power and LED Control
189
Ring Function Unit Pass-Through
191
And OC-1 External/Line Timing
192
OC-3 Multiplexer Transmission Interfaces
193
Transmission and Synchronization Interfaces
191
OC-3 Multiplexer Block Diagram - Terminal
195
OC-3 Multiplexer Block Diagram - STS-1 Drop
197
OC-3 Multiplexer Block Diagram - Hubbing
198
OC-3 Multiplexer Block
200
OC-3 Multiplexer Block Diagram - DS1/DS3/EC-1 Add/Drop, and VT1.5/STS-1 Path Switched Ring
200
OC-3 Multiplexer with OC-12 Optics Block Diagram
201
OC-3 Multiplexer Block Diagram - DDM-2000 Fiberreach Host - Single Homing
203
OC-3/OC-12 Ring (0X1) Single Homing
209
OC-3/OC-12 Ring (0X1) Dual Homing
210
DS3 Data Services on an OC-3 Ring
211
OC-3/OC-1 Ring (0X1) Single Homing
213
OC-3/OC-1 Ring (0X1) Dual Homing
214
OC-1/OC-1 Function Unit Hairpin Ring
216
OC-1/OC-1 Function Unit Hairpin Ring
217
OC-1/OC-1 Function Unit Hairpin Ring
219
Synchronization Timing Configurations (Sheet 1 of 2)
223
OC-3 Synchronization
226
DS1 Timing Output - Dual Homing Linear
228
Synchronization Reconfiguration - Access Ring
230
Synchronization Messages Using K2 Byte
231
Synchronization Messages Using S1 Byte
232
Synchronization Reconfiguration - Externally Timed Access Ring (Sheet 1 of 2)
235
Synchronization Reconfiguration - Access Ring (Sheet 1 of 3)
237
DS1 Timing Output with Fiber Failure (Sheet 1
240
And FT-2000 OC-48 Lightwave System Dual Homing DRI Configuration
243
And OC-12 Dual Homing DRI Configuration
245
6 Operations Interfaces
253
Operations Interfaces
255
Craft Interface Terminals
257
Craft Interface Terminal Connectors
258
Craft Interface Terminal Login Sessions
259
User Panel for Group 4 Shelf
263
OC-3 Pushbutton Combinations
265
Miscellaneous Discretes
271
7 Circuit Pack Descriptions
273
U/22G2-U/22G3-U/22G4-U OLIU Circuit Pack
276
U/27G2-U OLIU Circuit Pack
277
Circuit Pack Descriptions
279
BBG8/BBG8B SYSCTL Circuit Pack
283
BBG8/BBG8B SYSCTL Option Switches
286
BBG9 OHCTL Circuit Pack
289
BBG9 OHCTL Circuit Pack Block Diagram
291
BBF2B TGS and BBF4 TG3 Circuit Pack
294
BBF2B TGS and BBF4 TG3 Circuit Pack Block Diagram
296
BBF1/BBF1B DS1 Circuit Pack
304
BBF1/BBF1B DS1 Circuit Pack Block Diagram
306
DS1PM Circuit Pack Block Diagram
314
BBF5 Jumper Circuit Pack
321
BBF8 HDSL Circuit Pack
322
HDSL Circuit Pack Block Diagram
324
HDSL Line Specifications
325
BBF9/BBF10 IMA LAN Circuit Pack Block Diagram
335
BBG2 MXRVO Circuit Pack
341
BBG4B DS3 Circuit Pack
345
BBG4/BBG4B DS3 Circuit Pack Block Diagram
347
BBG4/BBG4B DS3 Line Build-Out (LBO) Jumpers
350
STS1E Circuit Pack Low-Speed and High-Speed Modes
354
BBG6 STS1E Circuit Pack Block Diagram
355
BBG19 DS3 Circuit Pack
362
BBG19 DS3 Circuit Pack Block Diagram
364
BBG19 DS3 Line Build-Out (LBO) Jumpers
367
TMUX Circuit Pack Block Diagram
372
BBG20 TMUX Line Build-Out (LBO) Jumpers
375
Universal Optical Connector
378
OLIU Feature Summary
379
Type OLIU Circuit Pack Block Diagram
385
U OLIU Circuit Pack Block Diagram
391
U OLIU Circuit Pack
404
U OC-12 OLIU Circuit Pack - 24G-U Pair with Interconnect Cable Assembly
405
26G2-U OLIU Circuit Packs
413
26G2-U OLIU Circuit Pack Block Diagram
415
U/27G2-U OLIU Circuit Pack Block Diagram
423
Optical System Interfaces (Points S and R)
429
Performance Monitoring Parameters Provisionable Via the CIT
433
Performance Monitoring Parameters Provisionable Via the CIT
434
8 Administration and Provisioning
437
Administration and Provisioning
441
Default DS1 to VT1.5 Mapping
450
Locked Cross-Connection
464
Ring STS-1 Cross-Connections (Termination/Drop) (Note)
474
Ring STS-1 Cross-Connections (Hub/Drop)
474
Ring STS-1 Cross-Connections (Pass-Through)
475
Ring STS-1 Cross-Connections
476
Ring VT1.5 Cross-Connections (Hub/Drop)
476
Ring VT1.5 Cross-Connections (Termination/Drop)
476
Ring VT1.5 Cross-Connections (Drop and Continue)
477
Ring VT1.5 Cross-Connections (OC-1 Hub/Drop)
477
Ring VT1.5 Cross-Connections (Locked)
478
Ring VT1.5 Cross-Connections (Pass-Through)
478
Ring VT1.5 Cross Connections (Hairpin)
479
Example OC-3 Ring Configuration Cross-Connections
486
Drop and Continue Nodes
492
Example Dual Ring Configuration Cross-Connections
494
Example OC-3/OC-12 0X1 Single Homing Configuration Cross-Connections
498
Example OC-1 Ring Configuration Cross-Connections
500
Example Single-Homed Path-Switched Ring Configuration Cross-Connections
503
Example Dual-Homed OC-3/OC-1 Path-Switched Ring Configuration Cross-Connections
506
Locked (0X1) STS-3C - Broadband Services Using DDM-2000 OC-12 Multiplexer
509
Parameters Provisionable Via Hardware Switches
510
Parameters Provisionable Via the CIT
512
Maintenance Description
519
Maintenance Description
523
Single-Ended Operations
527
OC-3 In-Service Software Upgrade Compatibility (Note)
531
OC-3 and OC-12 Software Compatibility (Note)
532
OC-3 and DDM-2000 Fiberreach Software Compatibility
533
OC-3 Multiplexer Dual Ring Interworking Software Compatibility
533
Example of Maintenance Signals as a Result of
535
DS1 Maintenance Signaling - Non-Ring Interfaces
537
DS3 Maintenance Signaling - Non-Ring Interfaces
538
Or EC-1 Line Maintenance Signaling - Non-Ring Interfaces
539
Maintenance Signaling - VT Ring Application
540
Maintenance Signaling - VT Ring Application, Unequipped
541
Maintenance Signaling - VT Ring Application, TMUX Circuit Pack
542
Maintenance Signaling - STS Ring Application
543
Maintenance Signaling STS Ring Application - Unequipped
544
Unidirectional Line Protection Switching
548
Locked DS3 Cross-Connect Path Protection Switching
553
DRI Path Protection Switching
555
Local Equipment Test
561
Local Wiring Cross-Connect Test
561
DS1/DS3 Line and Path and DS3 Path Performance Monitoring (PM)
563
OC-3 Multiplexer DS1 Path
565
DS3 Performance Monitoring Enabling
575
DS3 Performance Monitoring (PM) Modes (Note)
576
Technical Specifications
589
Transmission Interface Standards
589
T1EXT Span Powering
593
DS3 Interface Modes
601
Enhanced DS3 Performance Monitoring Modes
601
Optical System Interfaces (Points S and R)
614
22F-U/22F2-U and 22G-U/22G2-U/22G3-U/22G4-U OLIU Specifications
618
OLIU Link Budget - Multimode Operation
621
26G2-U/27G-U/27G2-U OLIU Specifications
625
26G2-U/27G-U/27G2-U OLIU Link Budgets (Note)
626
26G2-U/27G-U/27G2-U OLIU Link Budgets - Multimode Operation (Notes)
627
Sparing Guidelines
636
Universal Buildout Attenuators
639
CIT Interface Pin Connections
646
TL1/X.25 Interface - Default VC Assignments
652
TL1/X.25 Interface - LAPB Link Layer Parameters
653
TL1/X.25 Interface - X.25 Packet Layer Parameters
653
TL1/X.25 Interface - EIA-232-D Pin Connections
654
Power Dissipation and Current Drains
658
Table of Contents
668
Ent-Ulsdcc-L3
782
Performance Monitoring
782
Ent-Ulsdcc-L4
786
Init-Pm
795
Init-Sys
797
Ins-Prog
803
Logout
812
Opr-Aco
813
Opr-Lpbk-Ec1
814
Opr-Lpbk-T1
816
Opr-Lpbk-T3
821
Reset
826
Rlgn
828
Rls-Lpbk-Ec1
832
Rls-Lpbk-T1
833
Rls-Lpbk-T3
835
Rstr-Passwd
837
Rtrv-Alm
840
Rtrv-Attr-Alm
841
Rtrv-Attr-Cont
843
Rtrv-Attr-Env
845
Rtrv-Crs-Sts1
847
RTRV-CRS-Sts3C
850
Rtrv-Crs-Vt1
852
Rtrv-Ec1
855
Rtrv-Eqpt
857
Rtrv-Feat
861
Rtrv-Fecom
862
Rtrv-Hsty
864
Rtrv-Lan
865
Rtrv-Lgn
871
Rtrv-Link
873
Rtrv-Map-Neighbor
875
Rtrv-Map-Network
880
Rtrv-Ne
884
Rtrv-Oc1
890
Rtrv-Oc3
892
Rtrv-Oc12
892
Conditions
895
Sts3C
895
Context Map
900
Parameters
900
For IMA LAN
909
Line
915
Rtrv-Pm-Sts1
917
Rtrv-Pm-T1
921
Rtrv-Pm-T3
926
Rtrv-Pm-Tca
931
TMUX Circuit Pack
932
Rtrv-Pm-Vt1
934
Rtrv-Secu
954
Rtrv-Sts1
977
Mode Switch
984
Rtrv-Sync
987
Rtrv-T1
996
Rtrv-T3
1000
Rtrv-Vt1
1015
Rtrv-X25
1018
Set-Attr-Alm
1022
Set-Attr-Env
1026
Set-Date
1029
Set-Ec1
1030
Set-Feat
1032
Set-Fecom
1035
Set-Lan
1040
Set-Lgn
1044
Set-Link
1051
Set-Ne
1052
Set-Oc1
1057
Set-Oc3
1063
Set-Oc12
1065
Rtrv-Pmthres-Line
1077
Rtrv-Pmthres-Sect
1079
Rtrv-Pmthres-Sts1
1082
RTRV-PMTHRES-T1 Retrieve
1087
RTRV-PMTHRES-T3 Retrieve
1087
Rtrv-Pmthres-Vt1
1096
Security
1097
Rtrv-State-Eqpt
1106
Rtrv-State-Oc1
1106
Rtrv-State-Sts1
1106
Rtrv-State-Vt1
1106
Set-State-T3
1120
Set-State-Vt1
1122
Set-Sts1
1123
Set-Sync
1127
Set-T1
1135
Set-T3
1141
Set-Trace-Sts1
1148
Set-Vt1
1153
Set-X25
1155
Switch-Fn
1157
Switch-Line
1159
Switch-Ls
1161
Switch-Path-Sts1
1165
Switch-Path-Vt1
1169
Switch-Sync
1172
Test-Alm
1176
Test-Led
1178
Test-Sysctl
1179
Test-Trmsn-T1
1183
Test-Trmsn-T3
1188
Toggle
1194
Upd
1196
Set State EC1
1201
Set State OC3
1201
Set State T1
1201
Set State T3
1201
Threshold STS-1
1217
Threshold T1
1217
Threshold T3
1217
Unit
1237
A Sonet Overview
1253
Overview
1255
History
1255
Basic Purpose
1256
Technical Overview
1256
SONET Signal Hierarchy
1256
SONET Layers
1258
SONET Frame Format
1259
SONET Frame Structure
1260
Section Overhead
1260
Line Overhead
1261
Path Overhead
1262
VT Path Overhead
1263
VT Path Overhead Byte
1263
SONET Multiplexing Procedure
1264
SONET Multiplexing Procedure
1265
SONET Demultiplexing Procedure
1266
Asynchronous Multiplexing
1268
SONET Digital Multiplexing Schemes
1268
Synchronous Multiplexing
1269
Virtual Tributary Signals
1269
Concatenated Mode
1270
SONET Interface
1272
SONET Payloads
1273
Conclusion
1274
Higher Rate Transport
1274
Issue 3, June 2001
1317
Issue 3, June 2001
1318
Issue 3, June 2001
1319
Issue 3, June 2001
1320
Issue 3, June 2001
1321
Issue 3, June 2001
1322
Issue 3, June 2001
1323
Issue 3, June 2001
1324
Issue 3, June 2001
1325
Retainer Card
1409
Path Switched Ring
1513
22F-U/22F2-U OLIU Circuit Pack
1581
Path Switched Ring
1581
Lightwave System
1700
BBG6 STS1E Circuit Pack
2071
BBF3/BBF3B DS1PM Circuit Pack
2103
IMA LAN Power Settings
2151
Purpose and Scope
2531
Troubleshooting (Problem Receipt, Diagnosis & Resolution)
2534
Escalation
2535
List of Common Spares
2535
Product Documentation
2536
Test Equipment and Tools
2536
Training Courses
2536
Other manuals for Lucent Technologies DDM-2000 OC-3
Installation Manual
492 pages
Related product manuals
DDM-2000 OC-12
1676 pages
FiberReach DDM-2000
1896 pages