EasyManua.ls Logo

MR ETOS ED - Page 61

MR ETOS ED
406 pages
Print Icon
To Next Page IconTo Next Page
To Next Page IconTo Next Page
To Previous Page IconTo Previous Page
To Previous Page IconTo Previous Page
Loading...
6 Mounting
Maschinenfabrik Reinhausen GmbH 2020 616385142/08 EN ETOS
®
ED
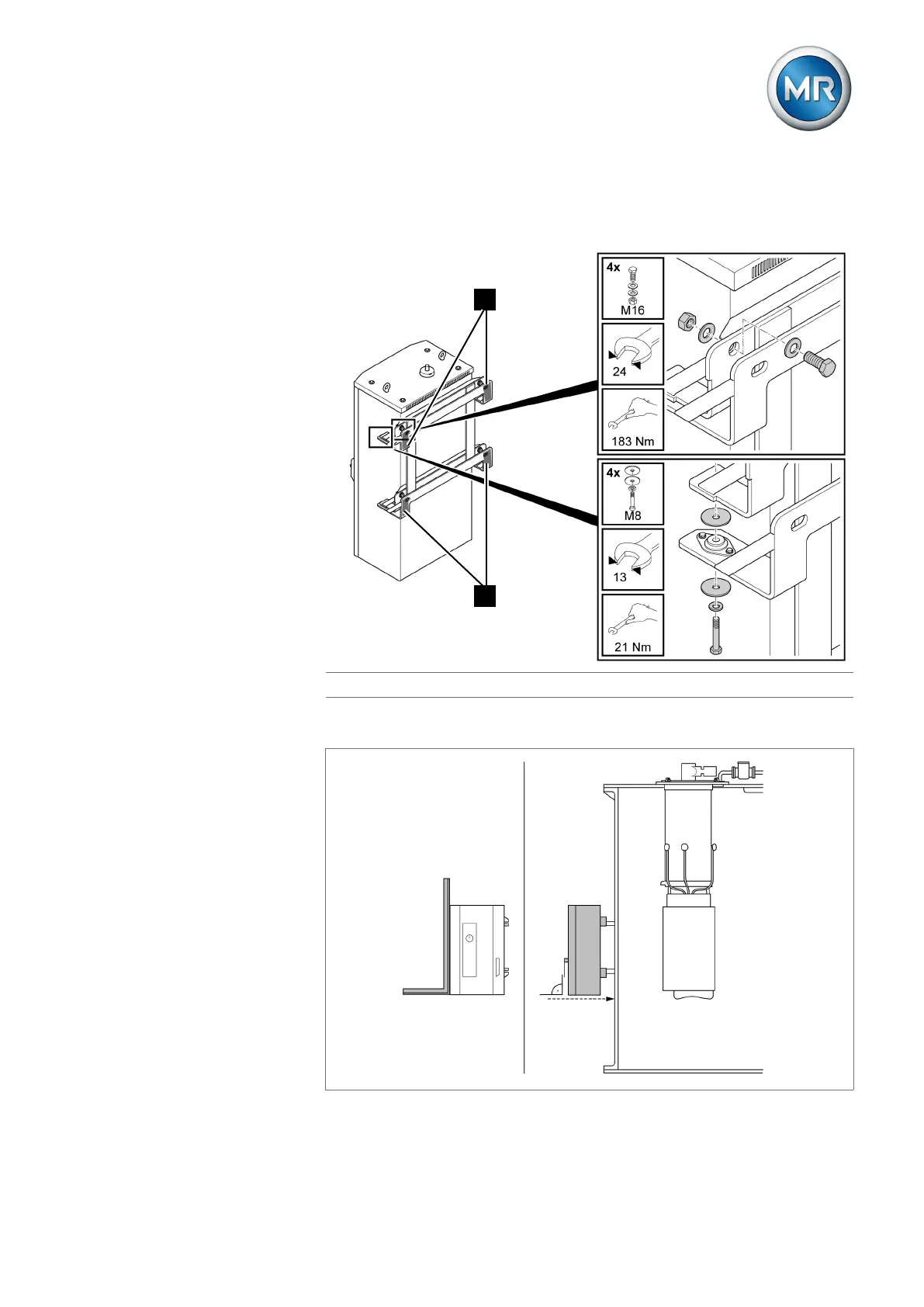
2. For control cabinets with vibration damper: Attach the inner bracket to the
control cabinet. Attach the outer bracket to the transformer wall. The com-
plete contact surfaces of the brackets must be in contact.
1
1
1 Bracket contact surfaces
3. Use the fixing attachments to attach the control cabinet to the stud bolts
and align it vertically on the transformer tank.
Figure39: Attaching the control cabinet

Table of Contents

Related product manuals