EasyManua.ls Logo

Orbotech SPTS Xactix e1 Series - Space Requirements

Default Icon
118 pages
Print Icon
To Next Page IconTo Next Page
To Next Page IconTo Next Page
To Previous Page IconTo Previous Page
To Previous Page IconTo Previous Page
Loading...
Manual Version e1-4.3.0.ae-R3. Page
17
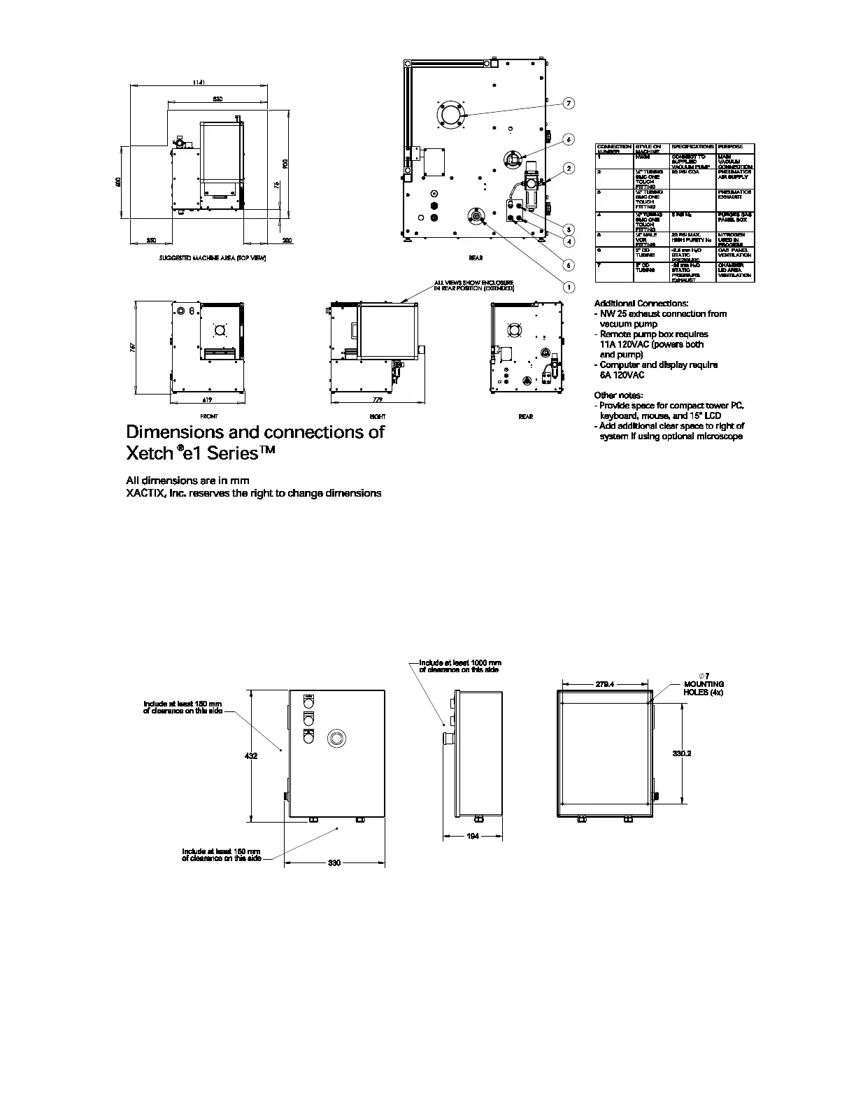
Figure 2. Machine dimensions and locations of utility connections. Note, some systems
do not require connection 4. Please contact SPTS for more info.
4.1.3 Space Requirements
The suggested free table space for the e1 Series in the clean room or laboratory environment is shown
in Figure 2. In addition, sufficient space must be provided behind the unit, or in the service chase, for
the system’s electrical box (see Figure 3) and vacuum pump (see Figure 4).
Figure 3. e1 System electrical power box to be mounted near e1. This unit is connected to the
e1 system via a 5m cable connecting to the left of the electrical box. The mass of this box is 10
kg and all dimensions are in mm.
e1

Table of Contents