EasyManua.ls Logo

Renesas RL78/F14 - Page 165

Renesas RL78/F14
1879 pages
Print Icon
To Next Page IconTo Next Page
To Next Page IconTo Next Page
To Previous Page IconTo Previous Page
To Previous Page IconTo Previous Page
Loading...
RL78/F13, F14 CHAPTER 3 CPU ARCHITECTURE
R01UH0368EJ0210 Rev.2.10 133
Dec 10, 2015
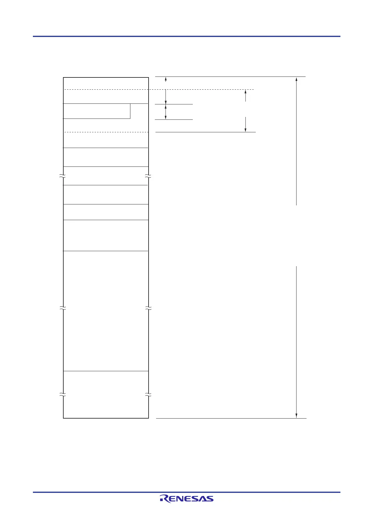
Figure 3-29. Correspondence between Data Memory and Addressing (R5F10AmF (m = G, L, M), R5F10BnF (n = A,
B, G, L, M))
Caution When executing instructions from the RAM area, be sure to initialize the used RAM area + 10 bytes
with any desired value.
FFFFFH
00000H
FFF00H
FFEFFH
FFEE0H
FFEDFH
F0800H
F07FFH
F0000H
EFFFFH
18000H
17FFFH
FDF00H
FDEFFH
F2000H
F1FFFH
F1000H
F0FFFH
FFE20H
FFE1FH
FFF20H
FFF1FH
FE700H
FE6FFH
Special function register (SFR)
256 bytes
General-purpose register
32 bytes
Code flash memory
96 KB
Special function register (2nd SFR)
2 KB
Mirror
47.75 KB
Reserved
Reserved
Reserved
Direct addressing
Register indirect addressing
Based addressing
Based indexed addressing
Short direct
addressing
SFR addressing
Register addressing
RAM
6 KB
Data flash memory
4 KB

Table of Contents

Related product manuals