EasyManua.ls Logo

Renesas RL78/F14 - Page 534

Renesas RL78/F14
1879 pages
To Next Page IconTo Next Page
To Next Page IconTo Next Page
To Previous Page IconTo Previous Page
To Previous Page IconTo Previous Page
Loading...
RL78/F13, F14 CHAPTER 6 TIMER ARRAY UNIT
R01UH0368EJ0210 Rev.2.10 502
Dec 10, 2015
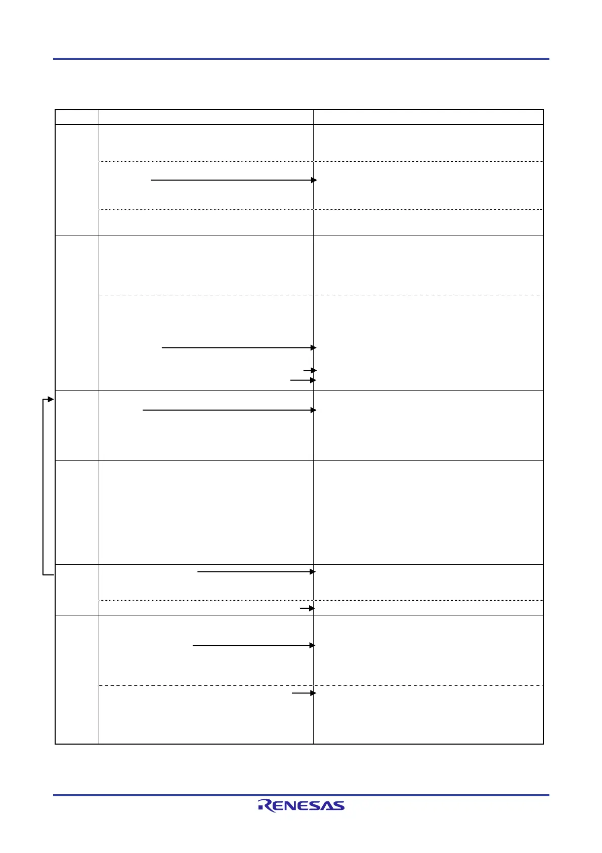
Figure 6-54. Operation Procedure When Frequency Divider Function Is Used
Software Operation Hardware Status
TAU
default
setting
Power-off status
(Clock supply is stopped and writing to each register is
disabled.)
Sets the TAUmEN bit of peripheral enable register 0
(PER0) to 1.
Power-on status. Each channel stops operating.
(Clock supply is started and writing to each register is
enabled.)
Sets timer clock select register m (TPSm).
Determines clock frequencies of CKm0 to CKm3.
Channel
default
setting
Sets timer mode register 0n (TMR0n) (determines
operation mode of channel and selects the detection
edge).
Sets interval (period) value to timer data register 00
(TDR00).
Channel stops operating.
(Clock is supplied and some power is consumed.)
Clears the TOM00 bit of timer output mode register m
(TOMm) to 0 (master channel output mode).
Clears the TOL00 bit to 0.
Sets the TO00 bit and determines default level of the
TO00 output.
Sets the TOE00 bit to 1 and enables operation of TO00.
Clears the port register and port mode register to 0.
The TO00 pin goes into Hi-Z output state.
The TO00 default setting level is output when the port mode
register is in output mode and the port register is 0.
TO00 does not change because channel stops operating.
The TO00 pin outputs the TO00 set level.
Operation
start
Sets the TOE00 bit to 1 (only when operation is
resumed).
Sets the TS00 bit to 1.
The TS00 bit automatically returns to 0 because it is a
trigger bit.
TE00 = 1, and count operation starts.
Value of the TDR00 register is loaded to timer count
register 00 (TCR00) at the count clock input. INTTM00 is
generated and TO00 performs toggle operation if the
MD000 bit of the TMR00 register is 1.
During
operation
Set value of the TDR00 register can be changed.
Sets corresponding bit of noise filter enable registers 1
and 2 (NFEN1 and NFEN2) to 1.
The TCR00 register can always be read.
The TSR00 register is not used.
Set values of the TOm and TOEm registers can be
changed.
Set values of the TMR00 register, TOM00, and TOL00
bits cannot be changed.
Counter (TCR00) counts down. When count value reaches
0000H, the value of the TDR00 register is loaded to the
TCR00 register again, and the count operation is continued.
By detecting TCR00 = 0000H, INTTM00 is generated and
TO00 performs toggle operation.
After that, the above operation is repeated.
Operation
stop
The TT00 bit is set to 1.
The TT00 bit automatically returns to 0 because it is a
trigger bit.
TE00 = 0, and count operation stops.
The TCR00 register holds count value and stops.
The TO00 output is not initialized but holds current status.
The TOE00 bit is cleared to 0 and value is set to the TO00 bit.
The TO00 pin outputs the TO00 set level.
TAU
stop
To hold the TO00 pin output level
Clears the TO00 bit to 0 after the value to be held is
set to the port register.
When holding the TO00 pin output level is not
necessary
Setting not required.
The TO00 pin output level is held by port function.
The TAUmEN bit of the PER0 register is cleared to 0.
Power-off status
All circuits are initialized and SFR of each channel is also
initialized.
(The TO00 bit is cleared to 0 and the TO00 pin is set to
port mode).
Operation is resumed.

Table of Contents

Related product manuals