EasyManua.ls Logo

WinGD RT-flex50DF - 3301−2;A2

Default Icon
586 pages
Print Icon
To Next Page IconTo Next Page
To Next Page IconTo Next Page
To Previous Page IconTo Previous Page
To Previous Page IconTo Previous Page
Loading...
Maintenance
33012/A2
Winterthur Gas & Diesel Ltd.
1/ 1
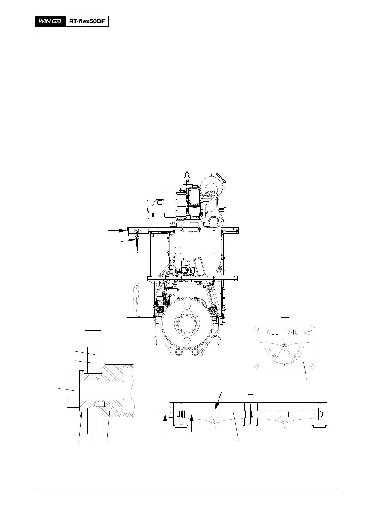
Configuration of Lifting Tools
Tools:
1 Spur-geared chain block 94017 2 Bushes 94335B
(WLL 2000 kg) 2 Screws 94335C
1 Lifting tool 94335
1. General
For the removal and installation of heavy engine components, the lifting tool (94335)
is attached between double I-girders (1). The lifting tool is attached with spring dowel
pins and tightened with the screws (94335C).
Note: The permitted Work Load Limit (WLL) is 1740 kg. The strand angle must
not be more than 30° .
I
I
I - I
94017
II
I
II
I
94335B
2
94335C
94335
94335
3
1
018.385/09
WCH00684
Fig. 1
Top Platform
2016

Table of Contents