EasyManua.ls Logo

WinGD RT-flex50DF - 5555−2;A1

Default Icon
586 pages
Print Icon
To Next Page IconTo Next Page
To Next Page IconTo Next Page
To Previous Page IconTo Previous Page
To Previous Page IconTo Previous Page
Loading...
Maintenance55552/A1
Winterthur Gas & Diesel Ltd.
2/ 6
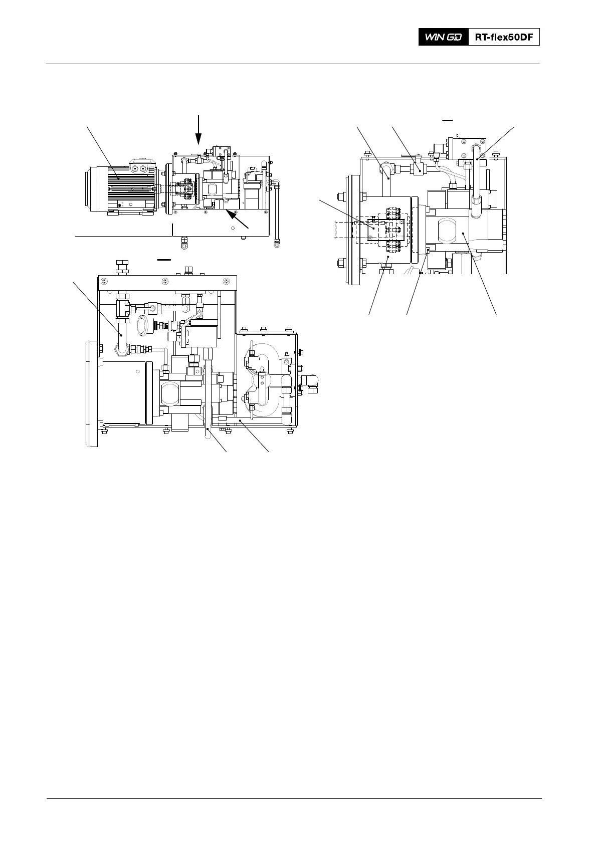
Fig. 1
7
1
3
WCH03857
I
I
2
8
6 5
4
2
4 9
I
II
11) On the assembly tool (94573, Fig. 2), turn fully back the special nut (2).
12) Apply Molykote GRapid Plus to the surfaces (4).
13) Attach the adapter piece (6) to the shaft of the pilot fuel pump (1).
14) Torque the adapter piece (6) to 45 Nm.
15) Turn the special nut (2) until touches the spherical disc (3). Do not tighten the
special nut.
16) Connect the HP oil pump and hose to the assembly tool (94573).
17) Operate the HP oil pump tp increase the pressure to between 1600 bar and 1800
bar. Make sure that the coupling half floats on the oil film.
18) Operate the HP oil pump to keep the pressure constant.
19) Turn back 5.0 mm the special nut (2). Make sure that the hydraulic force pushes
the coupling half against the spherical disc (3).
20) Make sure that the coupling half is loose.
21) Release the pressure from the HP oil pump.
22) Remove the gear coupling.
2018
Pilot Fuel Pump: Removal and Installation

Table of Contents