EasyManua.ls Logo

WinGD RT-flex50DF - Page 379

Default Icon
586 pages
Print Icon
To Next Page IconTo Next Page
To Next Page IconTo Next Page
To Previous Page IconTo Previous Page
To Previous Page IconTo Previous Page
Loading...
Maintenance
55552/A1
Winterthur Gas & Diesel Ltd.
3/ 6
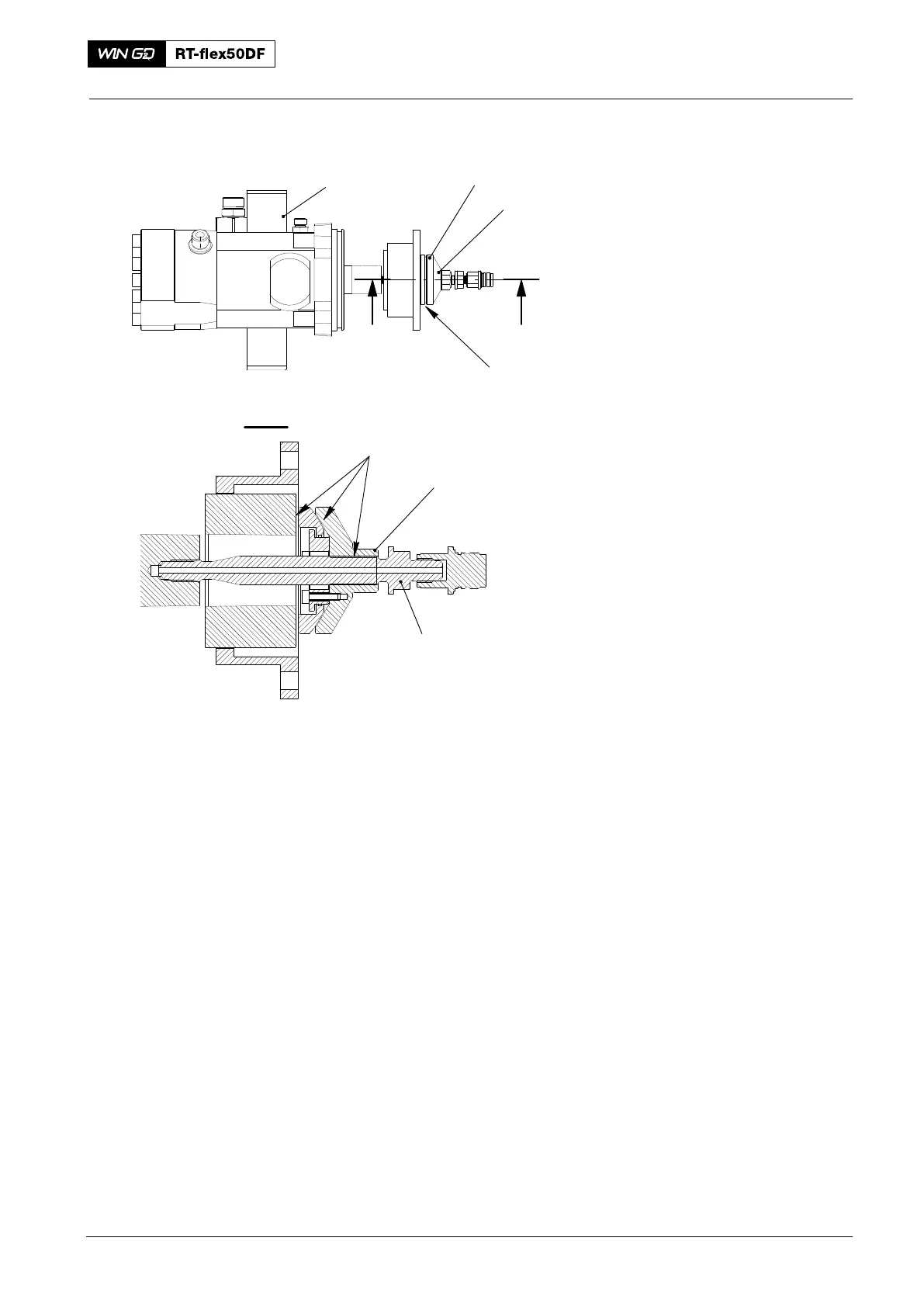
Fig. 2
WCH03848
2
1
I I
I - I
4
5
94573
6
3
2. Installation
1) Push as far as possible the special nut (2, Fig. 3) on the shaft of the pilot fuel
valve (1). Make sure that the couping is at 90° to the shaft of the pilot fuel valve.
2) Measure the distance from the special nut (2) to the end face of the pump (1).
Make sure that the distance is approximately 107.5 mm.
3) On the assembly tool (94573) turn fully back the special nut (2).
4) Apply Molykote GRapid Plus to the surfaces (3).
5) Attach the adapter piece (4) to the shaft of the pilot fuel pump (1).
6) Torque the adapter piece (4) to 45 Nm.
7) Turn the special nut (2) until it touches the spherical disc (7).
8) Attach the HP hose (9) to the HP oil pump (8)
9) Attach the hose (9) to the closing valve (5).
10) Operate the HP oil pump to get a pressure of between 1600 bar and 1800 bar.
11) Make sure that the coupling floats on the oil film.
2018
Pilot Fuel Pump: Removal and Installation

Table of Contents