EasyManua.ls Logo

WinGD RT-flex50DF - Page 260

Default Icon
586 pages
Print Icon
To Next Page IconTo Next Page
To Next Page IconTo Next Page
To Previous Page IconTo Previous Page
To Previous Page IconTo Previous Page
Loading...
Maintenance33031/A1
Winterthur Gas & Diesel Ltd.
4/ 5
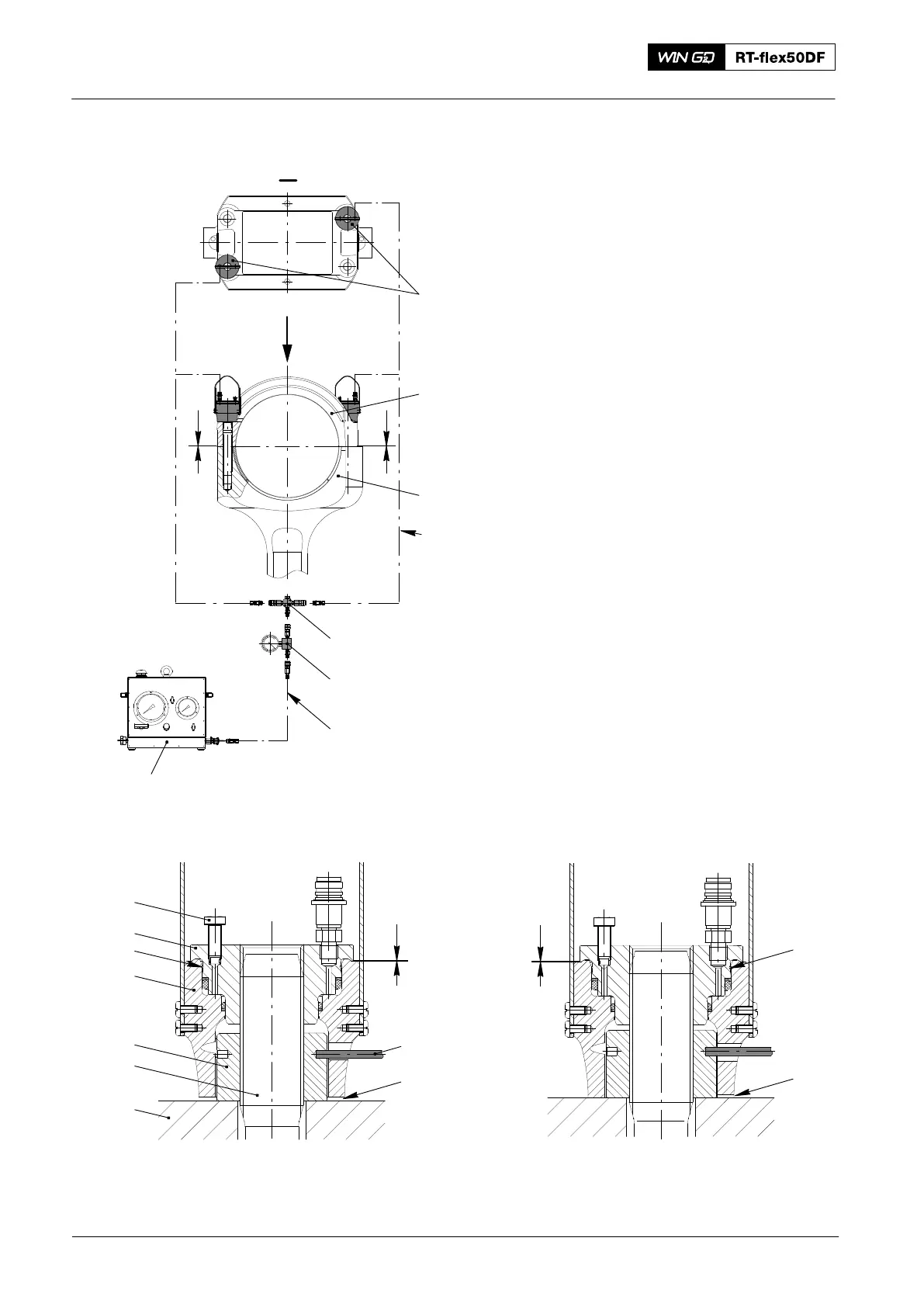
4. Loosening the stud of
top end bearing
Note: For loosening the studs always
follow the sequence shown in Fig.
4 i.e. a+a and b+b.
1) Clean the threads of studs 1 and the
area around the nuts 2.
2) Put the pre-tensioning jacks 94315
diagonally on the studs as shown in
Fig. 4, and completely screw them on
with opened vent screw 7 until there is
only little or no clearance at ’x’ (Fig. 5).
3) Turn back the pre-tensioning jacks by
about ½ turn (gap ’SA’ in Fig. 5).
4) Connect the pre-tensioning jacks to
hydraulic unit 94942 as shown in Fig. 4.
5) Actuate the hydraulic unit until
bubble-free oil flows out through the
vent screws. Close vent screws.
6) Actuate the hydraulic unit up to about
1530 bar and keep pressure constant.
Pistons 8 of the pre-tensioning jacks
must never exceed the red limiting
grooves ’BN’ (Fig. 5).
7) Use the round bar ’RS’ and screw back
the nuts 2 by one turn.
8) Release the pressure to ’0’ at the
hydraulic unit and then remove
pre-tensioning jacks.
9) Do the same procedure for the second
pair of the connecting rod studs.
PRE-TENSIONING JACK
PLACED FOR TENSIONING
009.756/02
x
KO
BN
Fig. 5
PRE-TENSIONING JACK
PLACED FOR LOOSENING
009.755/02
3
1
2
9
8
BN
7
x
SA
RS
Fig. 6
2016
Loosening and Tensioning the Connecting Rod Studs
94315
94934
94934A
94935
I
I
y
y
3
3
94935
a
b
b
a
013.431/05
94942
Fig. 4

Table of Contents