EasyManua.ls Logo

ABB ACS880-07CLC

ABB ACS880-07CLC
214 pages
To Next Page IconTo Next Page
To Next Page IconTo Next Page
To Previous Page IconTo Previous Page
To Previous Page IconTo Previous Page
Loading...
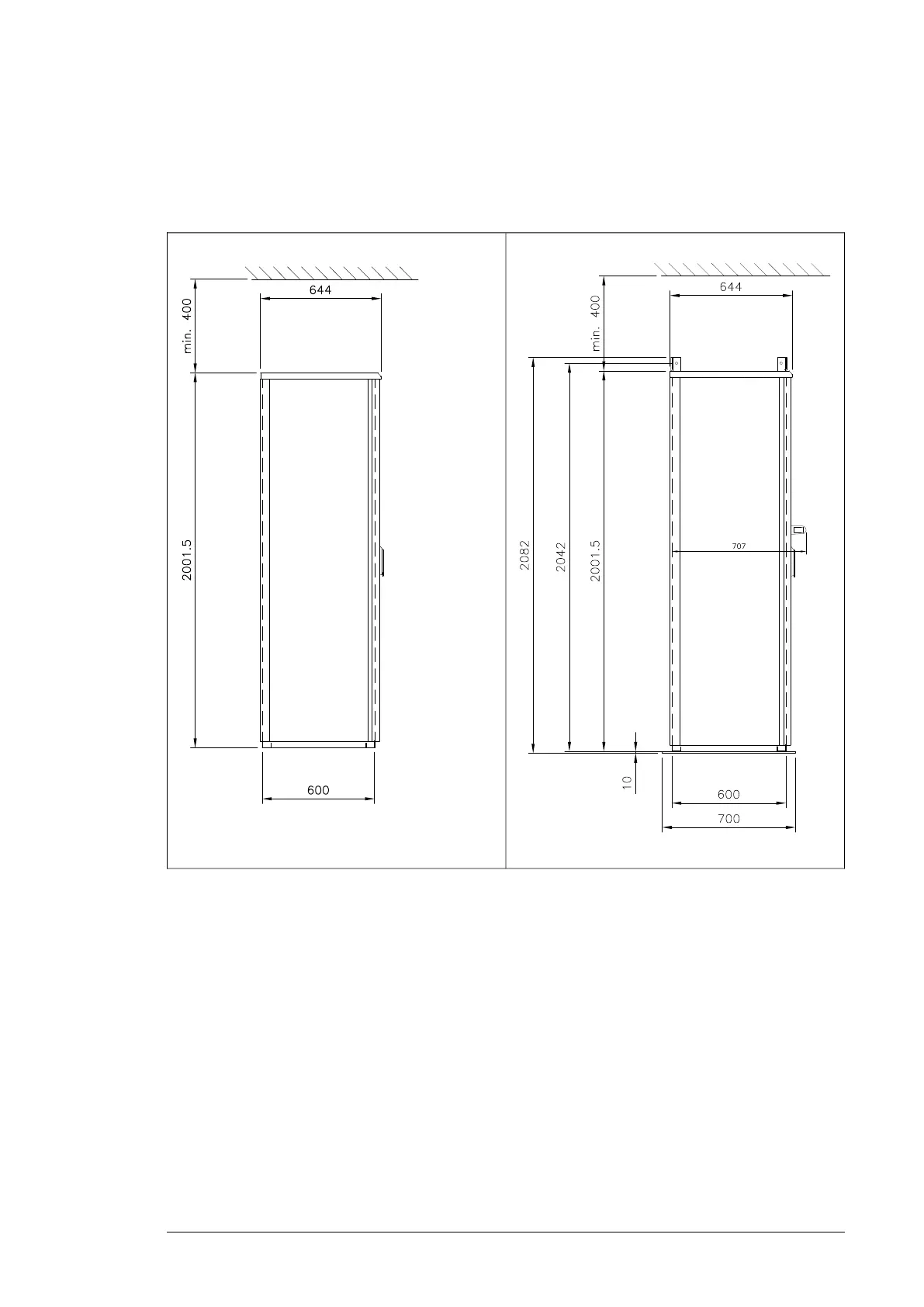
Dimension drawing examples
Cabinet height and depth
Marine construction (option +C121), IP42, side viewNon-marine, IP42, side view
Dimensions 175

Table of Contents

Other manuals for ABB ACS880-07CLC

Related product manuals